Back to property search

4 bedroom building plot – Mulberry House, East Harling

Guide Price £375,000

Property Details

Location Mulberry House is situated on the edge of the village of East Harling which is one of the area's best served villages with an excellent range of facilities including schooling, two pubs, grocers with bakery, general stores, butchers, excellent tea rooms, doctors, dentist and a wonderful sports field and social club. This is one of the most active villages with societies for many interests and a real community feel.

The village is well connected with easy access onto the A11 which serves Cambridge to the south or Norwich to the north. Wider afield lie the larger towns of Diss, Wymondham, Attleborough and Bury St Edmunds, and the cities of Norwich, just 25 miles away, and Cambridge, within 45 minutes or so by car (all dual carriageway). For access to London there are train stations at Diss on the Liverpool Street line or from Thetford into Kings Cross via Cambridge. The countryside surrounding the village is gently rolling with large areas of Forestry Authority owned land and woods with great public access for walking and cycling. This area is steeped in history from all ages and there are many local activities available for people living in the area and tourists alike.

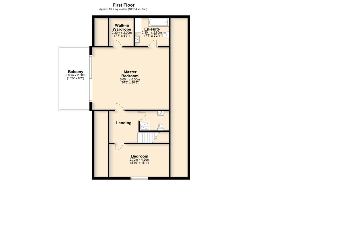
The Property In this market, how often does a self-build opportunity like this arise to create such a wonderful family home? This prospective building plot is completely ready to go. Full planning permission has been passed for the demolition of the 1970s pre-fab bungalow to be replaced by a new two-storey, four bedroom contemporary family dwelling.
The new dwelling measures around 2,850 sqft and consists of a large open plan kitchen dining room with separate utility and pantry. A family sitting room with an additional study and cinema room which could be used as a ground floor bedroom. A huge master bedroom with walk in wardrobe and en-suite bathroom as well as a south facing balcony utilising the rural outlook. This sale represents an ideal opportunity for anyone wishing to create their ideal family home in a rural Norfolk village.

Outside Mulberry House sits in a plot size of around three quarters of an acre allowing for plenty of outside space and possibilities. The current owner has gone to great lengths to prepare the outside space ready for a private garden to be designed and installed. This includes planting hundreds of White Cedar trees along the boundary of the plot all feed on drip hoses.

The rural views to the south give the impression of even further space and the design of the new property includes a south facing balcony to maximise these panoramic views.

Planning Permission Full planning permission for the demolition of the existing bungalow and the construction of the replacement dwelling was passed by Breckland Council on the 9th August 2022 and all document can viewed on the online planning portal under reference 3PL/2021/1654/F. It is worth noting that under the permission, the development must have commenced within three years of the permission date.

Services Mains water and electricity connections have been made and bought onto site. The former septic tank is in place and in use but for the new dwelling, foul drainage will need to be via an individual treatment plant.

Directions From Diss, head west on the A1066 and at Garboldisham take the right turn heading towards village of East Harling. After passing the five ways junction and before arriving into the village, the bungalow will be found on the left hand side.

Viewing Strictly by appointment with TW Gaze.

Freehold

Ref: 2/18996/CJC
x

Book a Viewing

Your details

Your address

Please note by submitting your details you are agreeing for TW Gaze to store your data in order to process your enquiry and that you have read our Privacy Policy.

Call 01379 641 341 for more details on this property

Book a Viewing