Back to property search

Hall Farm, Mendlesham, Suffolk

Guide Price £3,250,000

Property Details

It is our pleasure to offer for sale Hall Farm, Mendlesham, comprising 337 acres of land with partially moated manor house and farm buildings.
 
Hall Farm, Mendlesham comes to the market for the first time in nearly 90 years, having been farmed by three generations of the Downie family during that period.

Centrally located, Mendlesham Hall manor house was constructed in the 16th century and is Grade ll Listed.

Spacious inside, the house also benefits from a large rear garden bordered by trees and medieval moat.

A range of farm buildings provide grain and general storage.

The land is productive and supports a wide variety of combinable and root crops typically grown in this region.


Location and Amenities Hall Farm is situated in the parish of Mendlesham in Suffolk. Mendlesham village boasts a range of local amenities including a primary school, health centre, village stores, fish and chip shop, post office and public house. Community facilities include a village hall and playing field.

Mendlesham is conveniently located for access to the A140, which provides good road links north towards Diss (10 miles) and Norwich (29 miles); and south towards Ipswich (15 miles) and Stowmarket (8 miles). Diss, Norwich, Ipswich and Stowmarket all have railway stations, providing a regular commuter service to London Liverpool Street (78 minutes from Stowmarket Station).

THE WHOLE - 337 ACRES (136.5 HECTARES), GRADE II LISTED MANOR HOUSE, FARMYARD AND BUILDINGS Hall Farm, Mendlesham extends to around 136.5 hectares (337 acres) in one convenient block. Sited centrally within, is a partially moated Grade II Listed manor house and a farmyard with a range of buildings.

Land - 337ac (136.5ha) The land has been classified by MAFF as grade 3 arable, a mixture of Beccles 1 and Ashley series loam over clay, which supports a typical combinable and root crop rotation for this region. The land is farmed in 14 enclosures, although in practise, it could be farmed in 11 without further field amalgamation. The last four years of cropping can be found on the penultimate page of the brochure.

The land has benefitted from under drainage where necessary.

The fields are enclosed by hedges, roads, ditches and trees.

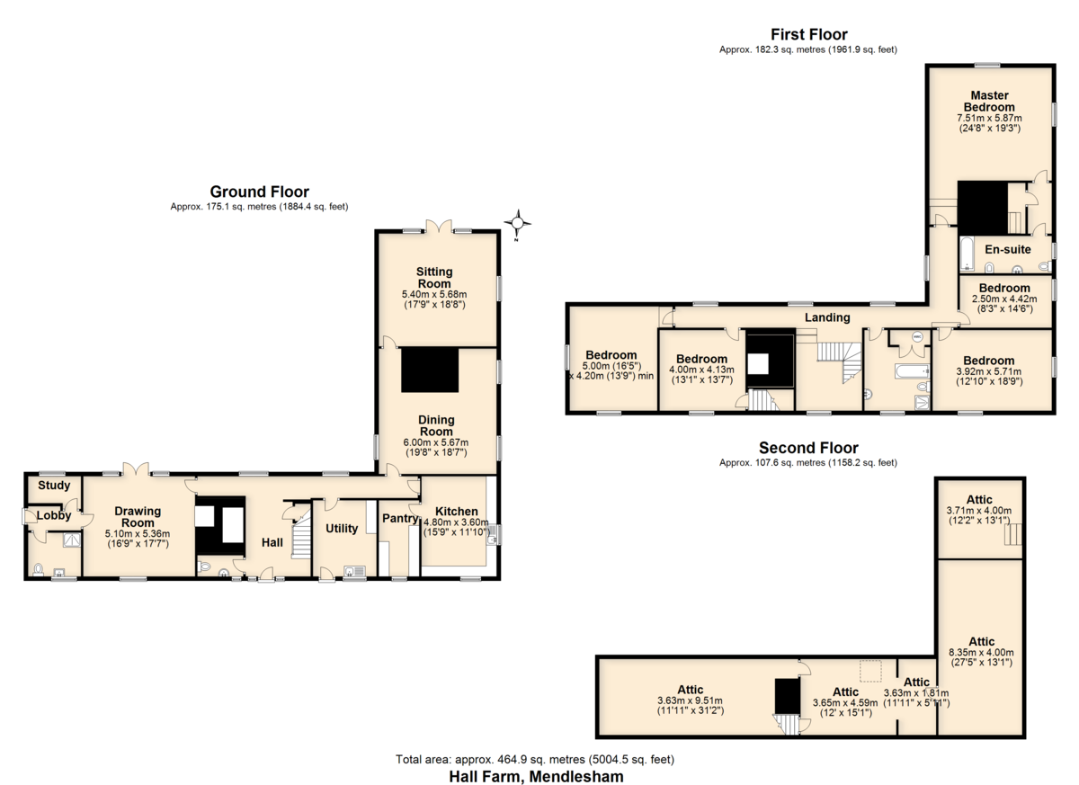
Mendlesham Hall A large five bedroom timber framed and rendered Grade II Listed manor house. The property is 'L' shaped with hipped plaintiled roof, two storeys and attic. There are two internal chimney stacks, one to each wing, each with four separate octagonal shafts. The property has a total of approximately 5,000 sq ft of internal space.

The ground floor accommodation comprises of a kitchen with pantry and utility room, dining room, two sitting rooms with French doors opening into the garden, an office and shower room. On the first floor there is a master bedroom with ensuite, four further bedrooms and family bathroom. A large attic on the second floor is partitioned into five sections.

To the south, the lawn is bordered by a mixture of deciduous and evergreen trees and moat, with further grassed areas surrounding.

To the front of the house is a brick garage measuring 5.2m (17ft) wide x 7.9m (26ft) long. The garage has a pitched asbestos cement sheet roof and brick walling.

The property is connected to mains electricity and water and has private drainage. Heating is provided from an oil fired boiler as well as open fires.

The Farm Buildings To the north of the manor house is a range of traditional and modern farm buildings, providing up to 1000 tonnes of permanent and temporary corn storage.

Building 1 Machinery store and temporary grain store measuring 12.4m (41ft) wide x 27m (89ft) long, constructed in the 1970's. Six bay wooden frame with open frontage; partial breezeblock walling (to 5ft) and wooden cladding; asbestos cement roof; concrete floor in four bays and hard-core base in two. Height to eaves approximately 4.3m (14ft).

Building 2a Traditional storage barn, former milling barn, with first floor measuring 5m (16.4ft) wide x 12.80m (42ft) long. Wooden framed, mainly weatherboard cladding with part render cladding on a brick plinth. Asbestos cement roof and concrete ground floor.

Building 2b Traditional storage barn measuring 6.2m (20.3ft) wide x 12m (39.4ft) long. Wooden framed, with partial wooden and render cladding, corrugated iron roof and concrete floor.

Building 3 General storage barn measuring 7.9m (26ft) wide x 8.5m (28ft) long. Asbestos cement and pantile roof, concrete floor and timber walling.

Building 4 General storage barn presently used as a spray store, measuring 6.10m (20ft) wide x 6.40m (21ft) long. Pitched and part hipped pantile roof, concrete floor and brick cladding.

Building 5 Silo grain store measuring 12.5m (41ft) wide x 14m (45ft) long. Concrete portal framed, with asbestos cement pitched roof, partial breezeblock walling, asbestos cement cladding and concrete floor. Within the building are six grain silos with a total capacity of nearly 300 tonnes - 2 x 65t silo's, 2 x 37t silo's, 1 x 70t silo & 1 x 25t silo.

Building 6a Lean-to grain store measuring 8m (26ft) wide x 14m (46ft) long. Concrete portal framed with asbestos cement roof, concrete floor, breezeblock walling, approximately 3m (10ft) grain walls and 4.11m (13.5ft) roller door added in 2016. Potential storage capacity of 180t.

Building 6b Grain store measuring 17.4m (57ft) wide x 23.2m (76ft) long. Concrete portal frame, with pitched asbestos cement roof, concrete floor, partial breezeblock walling (to north, east and west), metal walls to south and asbestos cement cladding to all sides. Approximately 3m (10ft) grain walls around interior, with a 5.6m (18.4ft) roller door added in 1995. Potential storage capacity of approximately 400t.

Three-phase electricity is connected to the site.


GENERAL

Method of Sale The land is offered for sale by private treaty as a whole or in up to three lots. A 10% deposit will be paid upon exchange, with completion as soon as possible thereafter.

Services Lot 1 benefits from mains water and three-phase electricity.

Important Notice If the purchaser for Lot 1 is different to Lot 2, then the purchaser of Lot 1 will be required to erect a boundary fence demarcating part of its eastern boundary within six months of completion.

Entitlements The relevant number of entitlements will be included in the sale and transferred to the buyer(s) after completion. In 2019, 133.79ha (330.59ac) were claimed for BPS purposes.*


Ingoing valuation Payment will be required for established crops on the basis of CAAV costings for cultivations, actual costs for seeds, fertilisers and sprays; and an enhancement value of £60 per acre for autumn sown crops being acquired in spring.

Tenure and Possession The property is for sale freehold with vacant possession.

Designations The land is within a Nitrate Vulnerable Zone (NVZ).

Outgoings The purchaser will be responsible for all charges from exchange of contracts.

Sporting, Mineral and Timber Rights All sporting, timber and mineral rights are included within the sale of the freehold insofar as they are owned.

Wayleaves, Easements and Rights of Way The property is offered subject to and with the benefit of all rights of way, whether public or private, all wayleaves, easements and other rights whether specifically referred to herein or not. Public footpaths cross through some of the land. There is an easement for an underground gas main and wayleaves for overhead electricity pylons and poles.

Assessments A land drainage charge is payable to the Environment Agency. The purchaser(s) will be responsible for the 2020 charge.

Land Drainage Plans available from TW Gaze.

Local Authority Mid Suffolk District Council: 0845 606 6170.


Council Tax Band G (2019/2020 - £2,898.60).

Health & Safety Given the potential hazards of a working farm, we would ask you to take all reasonable precautions as is possible when making an inspection for your own safety, particularly around the farm buildings. In all cases an inspection must be made by prior appointment through the agent's office.

Information Pack Available from TW Gaze.


VAT Should any sale of the land and buildings or any right attached to it become a chargeable supply for the purposes of VAT, such tax shall be payable by the purchaser in addition to any other sums.

Viewings By prior appointment with TW Gaze.

x

Book a Viewing

Your details

Your address

Please note by submitting your details you are agreeing for TW Gaze to store your data in order to process your enquiry and that you have read our Privacy Policy.

Call 01379 641 341 for more details on this property

Book a Viewing