Back to property search

2 bedroom property – Hoxne Road, Denham, Eye

Asking Price £700,000

Property Details

An architecturally striking, design led home inspired by a traditional Scottish longhouse, set within beautifully landscaped gardens designed by a Chelsea Flower Show award winner. Offering high specification open plan living, premium integrated appliances, and a seamless connection to the outdoors, Box House combines contemporary style with energy efficient technology in a private village setting. Location
Box House is set just off Hoxne Road in Denham, an attractive village comprising a large number of period homes with many of the properties enjoying views over open farmland. The nearest village shop is in Hoxne and more shops and amenities are available in the historic market town of Eye (5 miles away) which has highly regarded schooling to sixth form level. The larger town of Diss is around 7 miles and has a mainline rail service to London Liverpool Street taking around 95 minutes, and in the opposite direction there is the ever popular Framlingham, again with excellent schooling. The popular coastal towns of Southwold and Aldeburgh lie some 25 miles away.

The Property
Inspired by a traditional Scottish longhouse, this architecturally outstanding home is beautifully clad in cedar and crowned with an attractive zinc roof. Discreetly set back from the road and screened by elegant willow fencing, the property enjoys a high degree of privacy and a striking first impression. A gate opens into a thoughtfully landscaped front garden, setting the tone for the design-led accommodation beyond.
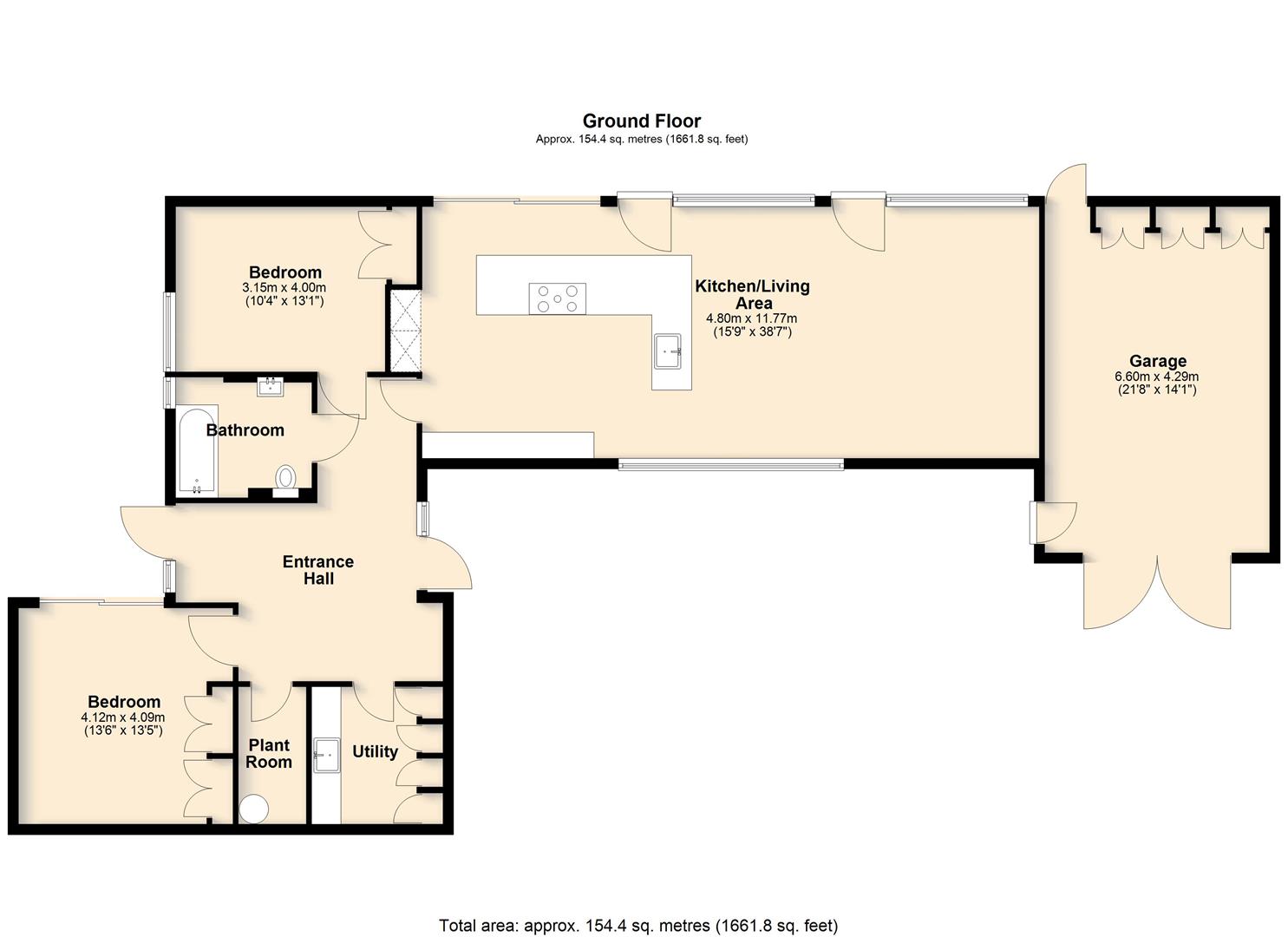
Upon entering, you are immediately drawn into a spacious dining area, which flows seamlessly through to an attractive side patio - also directly accessed from the principal bedroom - creating a strong connection between indoor and outdoor living.
A striking wood-clad feature wall incorporates flush-hinged doors, cleverly concealing access to the principal bedroom, plant room, and a well-designed utility room, where appliances are positioned at a practical waist height for ease of use. Both bedrooms are immaculately presented, with the second bedroom enjoying a pleasant side aspect. The remainder of the accommodation is arranged in an impressive open-plan layout, thoughtfully zoned using contemporary shelving units. This provides subtle separation while preserving the clean architectural lines and sense of space.
The kitchen is sleek and minimalist in design, with high-quality cabinetry concealing integrated appliances and deep pan drawers with internal storage solutions. Premium features include a Quooker tap providing instant boiling, chilled, and sparkling water, alongside Siemens integrated appliances, including an oven, separate steam oven, and built-in coffee machine, perfectly complementing the high-spec finish.
A full-height glazed wall overlooking the garden floods the space with natural light and offers uninterrupted views of the beautifully landscaped grounds. A partially enclosed snug area provides a more intimate setting for evening relaxation, while remaining connected to the overall open-plan environment, ideal for both everyday living and entertaining.

Outside
The gardens are where the property truly excels. Designed by a Chelsea Flower Show award winner, the grounds have been meticulously planned and planted, with a comprehensive self irrigation system ensuring ease of maintenance and year round interest.
A porcelain patio, accessed directly from the house, provides an elegant space for seating and entertaining. A striking sunken sculptural pond creates a focal point, drawing the eye through the garden and enhancing the sense of tranquillity. The patio extends to a contemporary outdoor dining area, sheltered beneath a sculptural modern pergola.
To the rear of the garden, tucked behind established hedging, is a studio clad in a complementary tone to the main house. This versatile space features an electric wood burner and double doors opening onto a decked terrace with an outdoor BBQ area and space for a hot tub. The setting has a distinctly Mediterranean feel, offering a sheltered environment suitable for year round enjoyment.
To the front, a driveway provides access to the garage, which is topped with a sedum roof. The garage has been insulated to a high standard and offers excellent potential to be incorporated into the main house, subject to the necessary consents, creating additional living accommodation or a further bedroom if required.

Services
Air source heat pump, under floor heating with Tesla storage. Mechanical ventilation system. Eco home control centre with ‘Alexa’ command. Air conditioning throughout. Mains drainage.

Viewings
Strictly by appointment via TW Gaze.

How to get there
What3words ///fight.inserting.steadily

Council Tax: D

Freehold

Anti-Money Laundering, Terrorist Financing and Transfer of funds Regulations 2017.
In line with the regulations, TW Gaze are legally required to carry out AML due diligence checks on all proposed legal purchasers involved in the transaction. A charge of £25.00 + VAT (£30.00 Inc VAT) processing fee is applicable for each purchaser once an acceptable offer is agreed.

Ref: 2/20169/KH
x

Book a Viewing

Your details

Your address

Please note by submitting your details you are agreeing for TW Gaze to store your data in order to process your enquiry and that you have read our Privacy Policy.

Call 01379 641 341 for more details on this property

Book a Viewing