Back to property search

3 bedroom property – Griston Road, Carbrooke, Thetford

Guide Price £450,000

Property Details

A rare opportunity to acquire a three-bedroom detached farmhouse set within approximately 4.71 acres located in a sought-after semi-rural position in the village of Griston. The property requires full modernisation and improvement, offering excellent potential for buyers looking to create a bespoke family home or smallholding in a peaceful countryside setting. The Location
The Farmhouse can be found tucked away on a quiet road off the B1108 with the town of Watton less than 2 miles away. Watton is a vibrant market town situated in the heart of rural Norfolk with good access to a network of roads connecting the market to towns of Dereham, Wymondham and Thetford. On the doorstep are a wide range of amenities including a Tesco supermarket, a variety of high street shops, schooling, surgeries and public houses. The cathedral city of Norwich can be found 20 miles to the east with its main line rail link to London Liverpool Street and its own international airport.

The Accommodation
A Grade II listed Rendered clay lump and pantiled roof farmhouse is set within approximately 4.71 acres of land, offering a rare opportunity for sympathetic restoration and modernisation. The property is approached via an entrance hall which provides access to the principal reception rooms, comprising a lounge and dining room, together with a kitchen, utility room and pantry. The accommodation retains a traditional and practical layout, offering scope for improvement and reconfiguration subject to requirements. To the first floor are two well-proportioned double bedrooms, both enjoying attractive views over the surrounding farmland, together with a third bedroom and a family bathroom. The farmhouse now requires comprehensive modernisation throughout but presents an increasingly uncommon opportunity to restore and enhance a period home of this nature, offering a peaceful rural setting and considerable potential.

The Outside
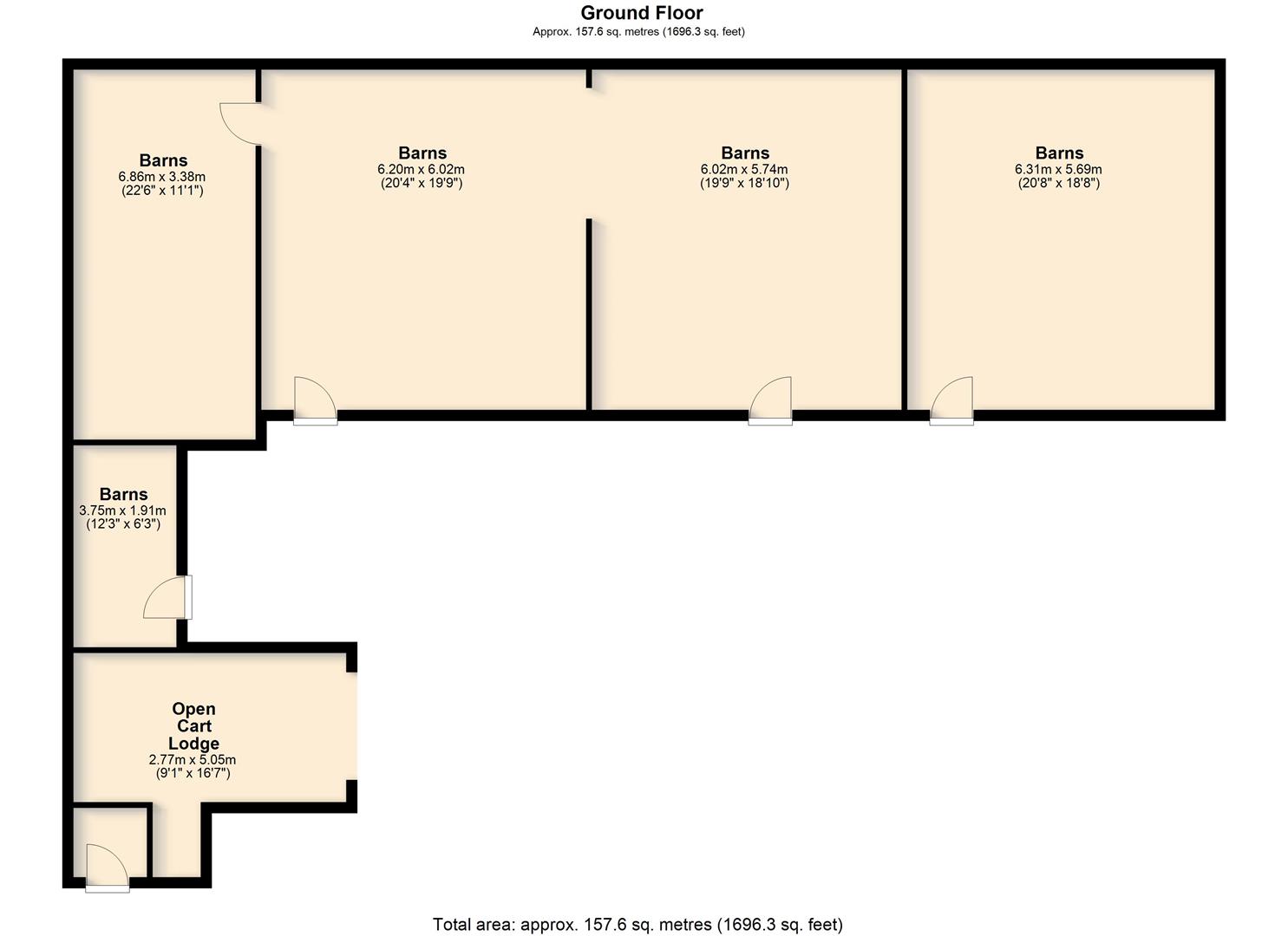
The farmhouse is approached along a peaceful country lane, where the setting immediately conveys a sense of privacy and rural charm. As the driveway is entered, the property opens out to reveal an appealing collection of traditional barns, useful outbuildings, and a cart lodge, all arranged to complement the main residence. Immediately adjoining the house is a formal garden, thoughtfully designed with established shrub planting and a ditch boundary, providing both structure and seclusion. Beyond, the land extends to a further two fields, offering excellent versatility for equestrian use or a smallholding lifestyle. In all, the property extends to approximately 4.71 acres and enjoys a delightful, park like rural setting. Rarely does a property of this nature and potential come to the market.

Agents Note
The property has a private drive to the property. The fields are currently accessed via a shared farm track

Services
Mains electric, mains water, septic tank and oil central heating

How to get there
spared.steady.stir

Viewing
Strictly by appointment

Council Tax Band D

Anti-Money Laundering, Terrorist Financing and Transfer of funds Regulations 2017.
In line with the regulations, TW Gaze are legally required to carry out AML due diligence checks on all proposed legal purchasers involved in the transaction. A charge of £25.00 + VAT (£30.00 Inc VAT) processing fee is applicable for each proposed purchaser. Payment is required Prior to the transaction being formally instructed with solicitors.

Ref 2/20143
x

Book a Viewing

Your details

Your address

Please note by submitting your details you are agreeing for TW Gaze to store your data in order to process your enquiry and that you have read our Privacy Policy.

Call 01953 423 188 for more details on this property

Book a Viewing