Back to property search

4 bedroom property – Northfield Road, Forncett St Peter

Price Guide £825,000

Property Details

Attractive 4 bedroom detached residence. Rural countryside setting. Mature grounds extending to 1.28 ac. Far reaching views. Double garage/workshop. Unconverted brick and flint barn with mezzanine level and impressive adjoining conservatory. No chain. Location
Faulgate House is found in a rural location within Forncett St Peter, a South Norfolk village which lies around 6 miles from the popular market town of Wymondham, highly regarded for its schooling at both Wymondham College and Wymondham High. The town offers a wide range of facilities including specialist boutique shops, supermarkets, cafes, restaurants and public houses. There is also Waitrose and Morrisons supermarkets. Wymondham has a mainline rail station providing regular commuter connections to both Norwich and Cambridge, from where the service connects into London Kings Cross. Just 10 miles south, the pretty town of Diss also benefits from a mainline rail station on the London Liverpool Street line. The city of Norwich is a short drive away and offers great shopping, entertainment and transport facilities. Norwich offers a regular service into London Liverpool Street with a journey time of approximately two hours.

The Property
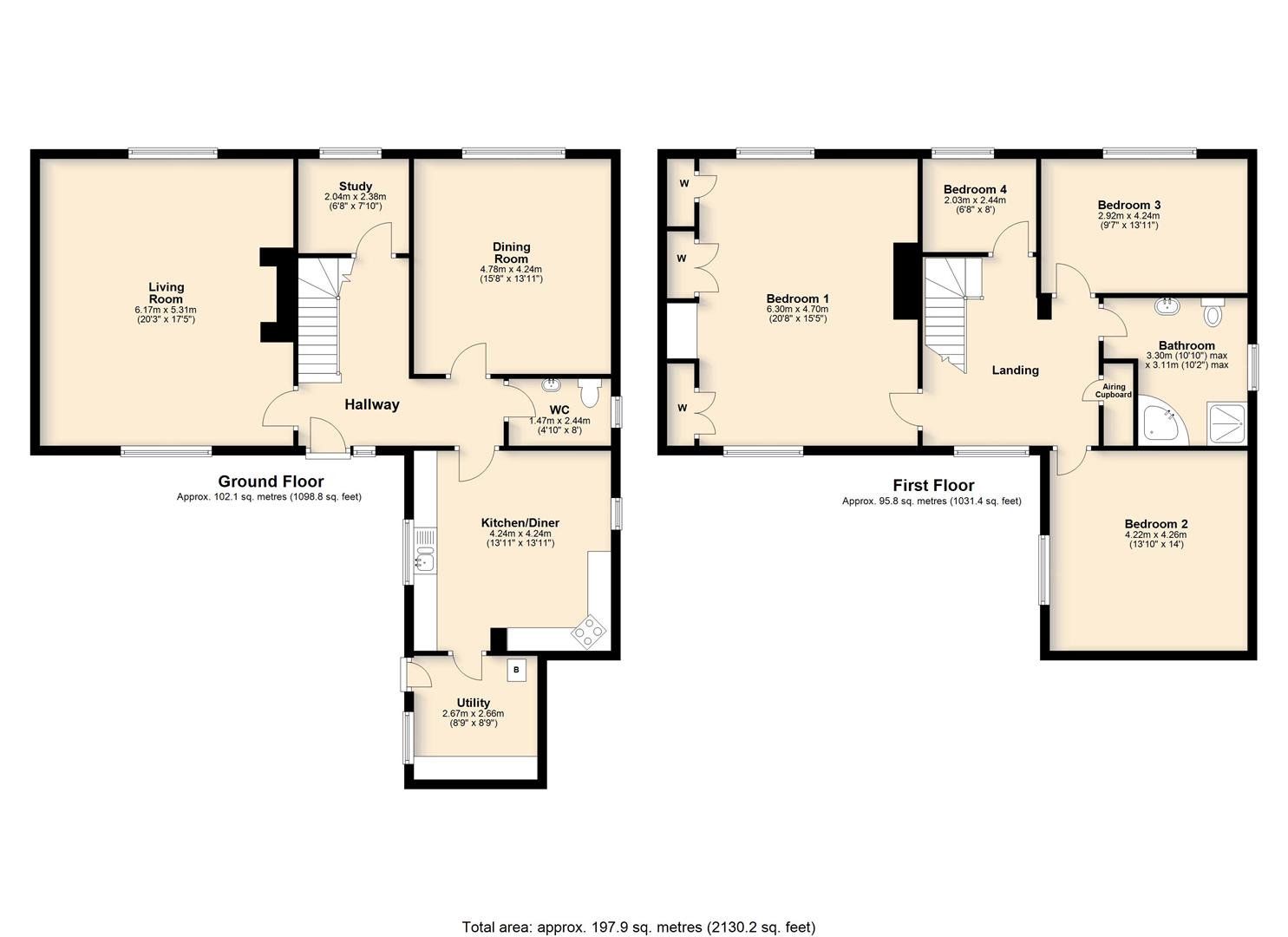
Faulgate House dates from circ.1900 and was renovated and extended in 1981 by the current family. The property is approached via a sweeping gravel driveway which leads past the impressive barn, towards the main house. The house has clearly been cherished over the years and offers a traditional layout, with nicely proportioned rooms with high levels of natural light flooding in. The property is neutrally decorated and has a living room with a prominent fireplace, which creates a focal point within the room. The dining room supports a generous size kitchen/diner, which in turn leads to a useful utility. Off the spacious hallway, a cloakroom and office/study can also be found. All first floor bedrooms and the family bathroom lead off the large landing.

The barn
Adjacent the main house, a substantial and attractive brick and flint barn can be found. Built around 1990, the barn is in good condition, vaulted and extending to 30' in length, with stairs leading up to a mezzanine level, offering exciting potential for its use. A large conservatory adjoins the barn and provides a great place to relax and enjoy superb views across the garden. A double garage/workshop allows for further parking or a work/hobby space, with power and light, along with two sets of double doors.

Outside
The grounds total 1.28 ac and are mature with various trees, shrubs and boarders. Towards the end of the plot are a variety of fruit trees. There are far reaching countryside views beyond the side and rear boundary. The driveway allows ample space for a good number of vehicles.

Services:
Mains electricity and water are connected to the property. Private drainage system. Oil fired central heating.

How to get there:
What3words: ///alert.series.cages

Viewing:
By appointment with TW Gaze

Council Tax: F

Freehold

Ref: 2/20144
x

Book a Viewing

Your details

Your address

Please note by submitting your details you are agreeing for TW Gaze to store your data in order to process your enquiry and that you have read our Privacy Policy.

Call 01953 423 188 for more details on this property

Book a Viewing