Back to property search

3 bedroom property – Ketts Avenue, Wymondham

Asking Price £275,000

Property Details

A three bedroom extended detached chalet bungalow with off road parking and garage. The property would benefit form some updating and is offered with no chain. The Location
Wymondham itself is an historic market town just 10 miles south of Norwich city centre. The town benefits from a variety of good schooling, both primary and secondary, with Wymondham College in particular boasting an 'outstanding' Ofsted rating. There are good supermarkets including Waitrose and numerous small businesses in the town. Transport buses link the surrounding towns and villages and the town's railway station also provides a direct line into Norwich, Ely and Cambridge, with London commutable in around 2 hours.

The Property
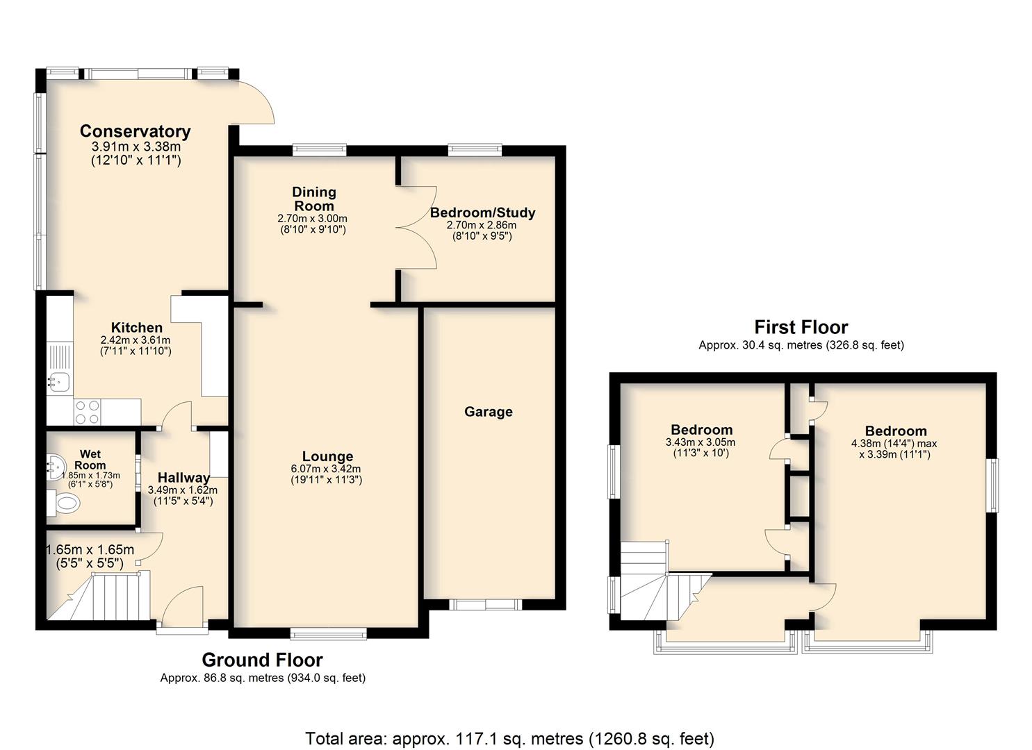
Perfectly positioned within easy reach of well-regarded local primary and high schools, this extended three-bedroom detached chalet bungalow offers spacious and versatile accommodation, making it an ideal family home. The property would benefit from some modernisation, presenting an excellent opportunity for buyers to update and personalise to their own taste. The ground floor comprises a welcoming entrance hall leading to a generous lounge, which flows through to a defined dining area, creating an ideal space for both everyday living and entertaining. There is also a ground floor bedroom, offering flexibility for multi-generational living or use as a home office. The kitchen is positioned to the rear of the property and provides access to a conservatory, which overlooks the garden and offers additional living space filled with natural light. To the first floor, there are two well-proportioned double bedrooms, both offering comfortable accommodation with ample space for furnishings.

The Outside
The property is approached via a driveway providing ample off-road parking and access to the brick-built garage. To the rear, a private and enclosed garden creates the perfect setting for outdoor dining, entertaining, or simply unwinding.

Freehold

Services
Mains electric, mains gas, mains water and mains drainage

How to get there
what3words///view.nurtures.flippers

Viewing
Strictly by appointment

Council Tax Band C

Anti-Money Laundering, Terrorist Financing and Transfer of funds Regulations 2017.
In line with the regulations, TW Gaze are legally required to carry out AML due diligence checks on all proposed legal purchasers involved in the transaction. A charge of £25.00 + VAT (£30.00 Inc VAT) processing fee is applicable for each purchaser once an acceptable offer is agreed.

Ref 2/20102
x

Book a Viewing

Your details

Your address

Please note by submitting your details you are agreeing for TW Gaze to store your data in order to process your enquiry and that you have read our Privacy Policy.

Call 01953 423 188 for more details on this property

Book a Viewing