Back to property search

3 bedroom property – St. Margarets Road, Bungay

Offers Over £475,000

Property Details

Detached Grade II listed thatched cottage, position on a mature grounds with pond, total plot extends to 0.64 ac. Timbered living Room. Inglenook fireplaces. brick laid flooring. Tranquil open countryside on the doorstep. Original features including former Mullion windows, bread oven and stove. Driveway for several vehicles. Rural, yet on 2 miles from Bungay.

Tax Code: E Location
Hill Farm Old House is nestled down a private lane off St Margaret’s Road, with idyllic countryside on the door step. The cottage is only a couple of miles from the pretty market town of Bungay, which straddles the Norfolk/ Suffolk border. Bungay is a bustling place, benefitting from good range of day-to-day amenities, shops and local businesses. The historic and cultural 'fine city' of Norwich can be reached in around 45 minutes, with the city benefitting from wide selection of independent, boutique shops and businesses, complementing the larger national stores and retailers. Eateries, restaurants, entertainment offerings are plentiful, whist there are numerous transport links and facilities by road, rail and air. The city is connected by rail to Cambridge and London Liverpool Street within 2 hours, with Norwich International Airport boasting offering flights both domestically and to european destinations.
The gorgeous Norfolk and Suffolk coastline is only a short drive away from Bungay.

The Property
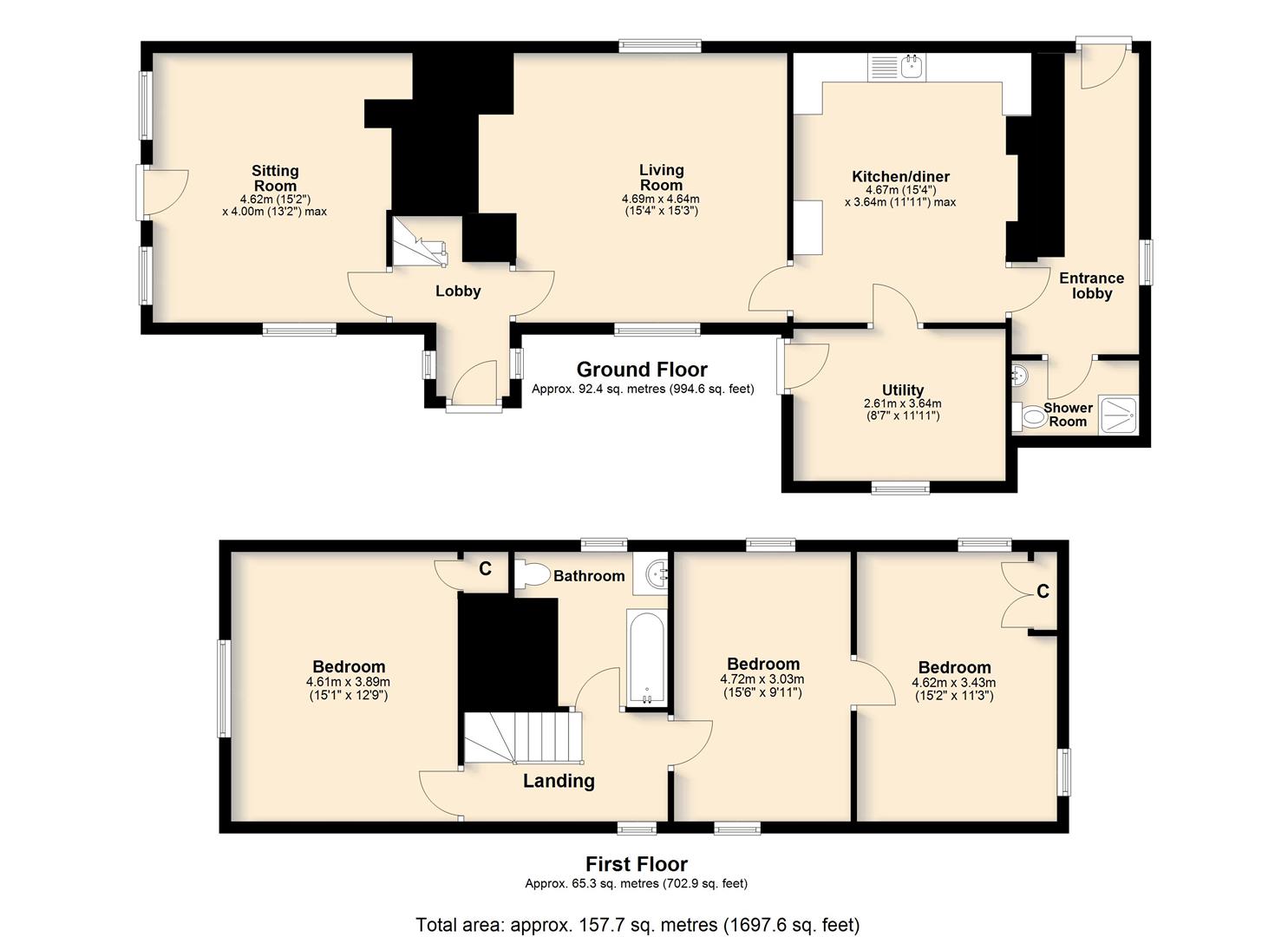
Grade II listed, cosy thatched cottage thought to date back to the 16th century, or slightly older, the property is packed with original character, such as Mullion window frames, inglenook fireplaces and a vaulted beamed ceiling in the bedroom, to name but a few. The property is linear with its layout of accommodation, which comprises a ground floor shower room, kitchen/diner, supporting utility, timbered living Room and separate bright dining room, which has flexibility in its use. As can be seen on the floorplan, there are 3 first floor bedrooms, all of which cater double beds, as well as a bathroom.

Outside
Arriving at the gravel driveway, which provides space for 3-4 vehicles, a picket fence and gate separates the mature garden which is stocked with various established shrubs and trees, along with natural pond. The grounds continue past the cottage, with opening through to a secret garden, again mature with fruit trees, summerhouse, poly tunnel and greenhouse. In total, the grounds extend to 0.64 ac

Services
Mains electricity and water. Electric storage heating. Private drainage system.

How to get there
What3words: cascaded.grinning.festivity

Viewings
By appointment via TW Gaze

Freehold

Council Tax: E (East Suffolk)

Anti-Money Laundering, Terrorist Financing and Transfer of funds Regulations 2017.
In line with the regulations, TW Gaze are legally required to carry out AML due diligence checks on all proposed legal purchasers involved in the transaction. A charge of £25.00 + VAT (£30.00 Inc VAT) processing fee is applicable for each purchaser once an acceptable offer is agreed.

Ref: 2/19862/RM
x

Book a Viewing

Your details

Your address

Please note by submitting your details you are agreeing for TW Gaze to store your data in order to process your enquiry and that you have read our Privacy Policy.

Call 01379 641 341 for more details on this property

Book a Viewing