Back to property search

3 bedroom property – Hall Lane, Tharston

£332,000

Property Details

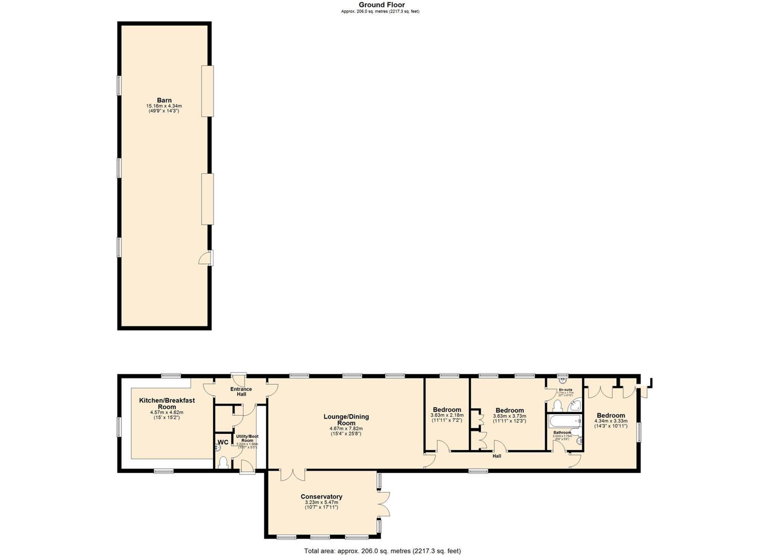
A three bedroom character barn conversion with second barn currently used as double garage and storage all set in a tranquil rural location.

Council Tax Band: E

EPC: E The Location

Tharston is a small rural village located west of the A140 Norwich-Ipswich road. It lies between a cluster of small market towns including Wymondham, Bungay, and Diss. There is a church and a local primary school in the nearby village of Hapton. The well served village of Long Stratton is just a few minutes' drive away having an infant, junior and high school, pubs and cafes, several shops as well as healthcare and recreational facilities. Work on the long awaited Long Stratton bypass has now started and sure to add ease to many journeys. This is located on the other side of the A140 (Western side). The Norwich to London mainline railway service can be accessed at either Diss or Norwich station. The market town of Wymondham is just 8.6 miles from the property and provides excellent facilities with a Waitrose supermarket and the highly regarded Wymondham College. Direct train travel to London is available from either Norwich or Diss with intercity trains to London Liverpool Street. Wymondham train station has trains to London Kings Cross via Cambridge. The Property

Nestled in a peaceful location, this stunning three-bedroom barn conversion offers a perfect blend of rustic charm and modern living. Retaining many of its original features, including exposed beams and a traditional exposed brick fireplace ideal for a wood burner, this home provides character and warmth throughout. The spacious kitchen/breakfast room is flooded with natural light, making it an ideal space for both casual meals and entertaining. The inviting lounge/dining room, with its exposed fireplace, creates a cozy and welcoming atmosphere. A spacious conservatory offers tranquil views of the surrounding garden, extending the living space beautifully.

The main bedroom benefits from built-in wardrobes and an en suite bathroom, while two additional bedrooms and a family bathroom ensure ample space for a growing family. Externally, the garden provides a serene setting, ideal for outdoor relaxation. This home offers a wonderful combination of countryside living and contemporary comforts.

The Outside

The rear courtyard garden is perfect for those who want a space that's easy to maintain, while still providing access to the barn/garages ideal for storage or working on projects. The front lawned garden with mature trees adds a touch of nature, making it a welcoming entrance. The summer house seems like a charming addition for relaxing or outdoor activities.

Services
Mains Electricity, Calor gas (tank), Shared septic tank and mains water

How to get there
what3words///tilts.wage.compelled

Viewing - Strictly by appointment via TW Gaze

Council Tax - Band E

Agents notes - The occupation of the dwelling shall be limited to a person solely or mainly employed, or last employed, in the locality, in agriculture as defined in Section 290 (1) of the Town and Country Planning Act, 1971, or in Forestry (including any dependents of such a person residing with him), or a widow or widower of such a person.

Prospective purchasers should note that this property is subject to an agricultural tie. Should the successful purchaser succeed in removing the agricultural tie, an overage payment will be due to this vendor or their successors equivalent to 100% of the uplift in the value generated as a result of the removal of the tie. This will be included in the sales contract and the term for the overage will be 50 years. These terms are non-negotiable.

Rights over adjoining property for water supply. The property has a vehicular right of way at all times for use as a single dwelling over the area hatched brown.

The agent believes there is solar interest in the field North of the Gables with minimal view of the the field from the kitchen window. Long Stratton is in the process of expanding with planning for 1800 new homes and community facilities along with a bypass which runs west of the town (which is currently under construction ).
x

Book a Viewing

Your details

Your address

Please note by submitting your details you are agreeing for TW Gaze to store your data in order to process your enquiry and that you have read our Privacy Policy.

Call 01953 423 188 for more details on this property

Book a Viewing