Back to property search

4 bedroom property – Norwich Road, Hardingham

Price Guide £600,000

Property Details

A development opportunity to renovate and restore a pretty farmhouse and detached double storey barn with further out buildings all in the popular village of Hardingham.

Full Description

Location Located in a beautiful countryside setting in the small village of Hardingham. Whilst having this rural seclusion, day to day amenities are not far away in the charming Georgian village of Hingham (2 miles). The vibrant market town of Wymondham provides a good range of shopping facilities including a Waitrose and Morrisons, local pubs and restaurants and highly regarded schooling at the High Academy and Wymondham College. There is good road access into Norwich, cross country via B roads or the A11 trunk road to such destinations as; The Research Park, University of East Anglia and The Norfolk and Norwich University Hospital. The A11 is now fully dualled down to the M11 and London itself is within about 2 hours drive. Wymondham has a train station on the Norwich to Cambridge train line with regular connections on to London Kings Cross.

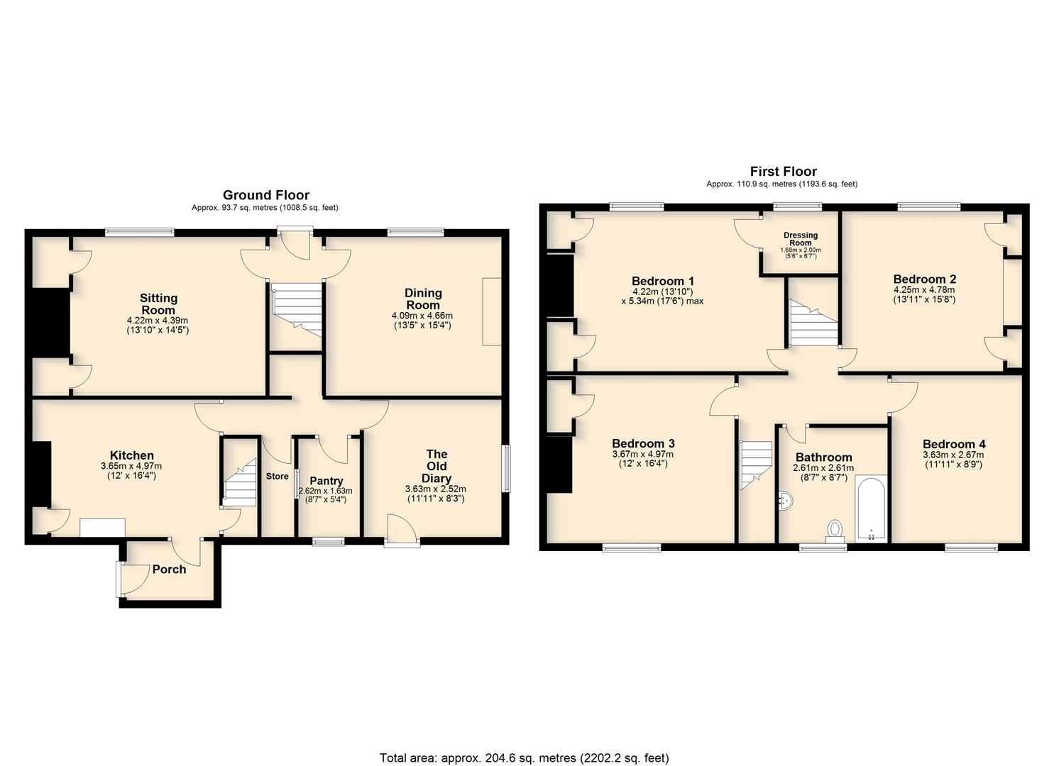
The farmhouse This pretty farmhouse was listed back in the 1980's. The property although requiring modernization is found a much-loved condition, with a wealth of character features including the kept old dairy found off the pantry corridor. The original building has a traditional formal layout with the two reception rooms, wide staircase, but with a kitchen to the rear featuring a further staircase and access to the varied storerooms, pantry, and dairy. The first-floor accommodation holds, four very generous proportioned bedrooms and a family bathroom.

The barns and outbuildings Measured at around 5,600 sq ft internally, this impressive complex of red brick Norfolk barns occupy an extremely large area of hard standing and have easy access to the driveway approach. They are made up of stabling, livestock housing, garaging, a workshop and a two- storey granary. The notable double height mid barn is a round 60' and features incredible double doors to the land beyond. There is also a pretty flint wash house and store which holds a multitude of uses and potential too.

Potential Danemoor Farm has not been through any planning applications or development schedules. The outstanding potential is clear although we invite interested parties to make their own investigations as to likelihood of permissions.

Outside Set back on a sweeping farm drive, the farmhouse is approached by a striking front garden. Lovingly stocked with established floral borders, plants and trees. The barn will benefit form a private garden boundaries are being allocated at time of marketing.

Services Mains electricity, water is connected to the property. Oil fired boiler supplying heating to radiator system and domestic hot water. Private drainage.

Directions From Wymondham town centre follow Chapel Lane towards the B1135. Proceed over the hump back bridge bearing right onto Crownthorpe Road and follow this road for around two miles into Kimberley Green. At the T junction turn right onto the B1108 and the next left on to Dereham Road. As you pass the Hardingham village sign the property will be found on the right hand side.

Agents Note - Plans are for guidance purposes only until the boundaries have been formalised

Viewing Strictly by appointment with TW Gaze.

Freehold

Council Tax Band – F

Ref: 2/14859
x

Book a Viewing

Your details

Your address

Please note by submitting your details you are agreeing for TW Gaze to store your data in order to process your enquiry and that you have read our Privacy Policy.

Call 01953 423 188 for more details on this property

Book a Viewing