Back to property search

4 bedroom property – Denmark Street, Diss

Offers In The Region Of £130,000

Property Details

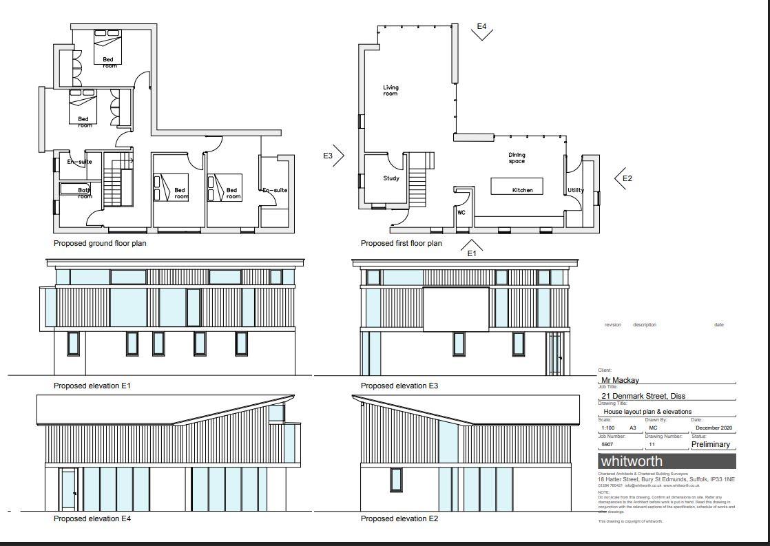
Residential building plot with full planning permission for a detached four-bedroom house in a well-established area of Diss. The approved design offers around 1,883 sq ft of internal space, parking, and a private garden. Some works have already been carried out, securing the planning permission as live. Accessed via a private driveway, this is an excellent opportunity to create a bespoke family home. Location
An excellent opportunity to acquire a residential building plot with full planning permission in an established and well-regarded area of Diss. The plot sits in a tucked-away position off Denmark Street and provides the chance to build a detached four-bedroom home with parking and gardens.
Planning consent was granted on 15th February 2021 under reference 2020/2463. The approved plans allow for the removal of a former shed/workshop and the construction of a two-storey dwelling extending to approximately 175 sqm (1,883 sq ft). Some initial site works have been completed, and it is understood this secures the planning permission as extant. The Community Infrastructure Levy (CIL) charge of £12,294 will be payable by the purchaser.

The proposed layout includes generous internal accommodation, ideal for family living, with private garden space and off-road parking.

Access
Access will be via a private driveway from Denmark Street, which will be shared in part with the neighbouring property.

Services
The plot is currently unserviced. It will be the responsibility of the buyer to arrange for the connection of mains services following completion.

How to get there
What3words///adopters.pulsing.sparkle

Viewing
Strictly by appointment with TW Gaze.

Freehold

Ref:2/19938
x

Book a Viewing

Your details

Your address

Please note by submitting your details you are agreeing for TW Gaze to store your data in order to process your enquiry and that you have read our Privacy Policy.

Call 01379 641 341 for more details on this property

Book a Viewing