Back to property search

4 bedroom property – Church Street, Fressingfield

Guide Price £625,000

Property Details

Guide Price £625,000 - £650,000.

A spacious four-bedroom Victorian home full of period charm, featuring generous reception rooms, a bright garden room, a large kitchen, and well-proportioned bedrooms. Set centrally within its plot with private driveway, garage, and attractive gardens. Location
Fressingfield is a vibrant village and very popular for a number of reasons, one of which is its good range of services including village convenience store, public house (The Swan) and The Fox & Goose restaurant, village school, doctors surgery / medical centre and other small businesses. Fressingfield is a pretty village, set in an elevated position in the Waveney Valley, with the market town of Harleston just 4 miles away, and the larger South Norfolk town of Diss with its mainline rail service to London Liverpool Street 11 miles away. The Suffolk coastline (Southwold and Aldburgh) are reachable within a 20 minute drive.


Property
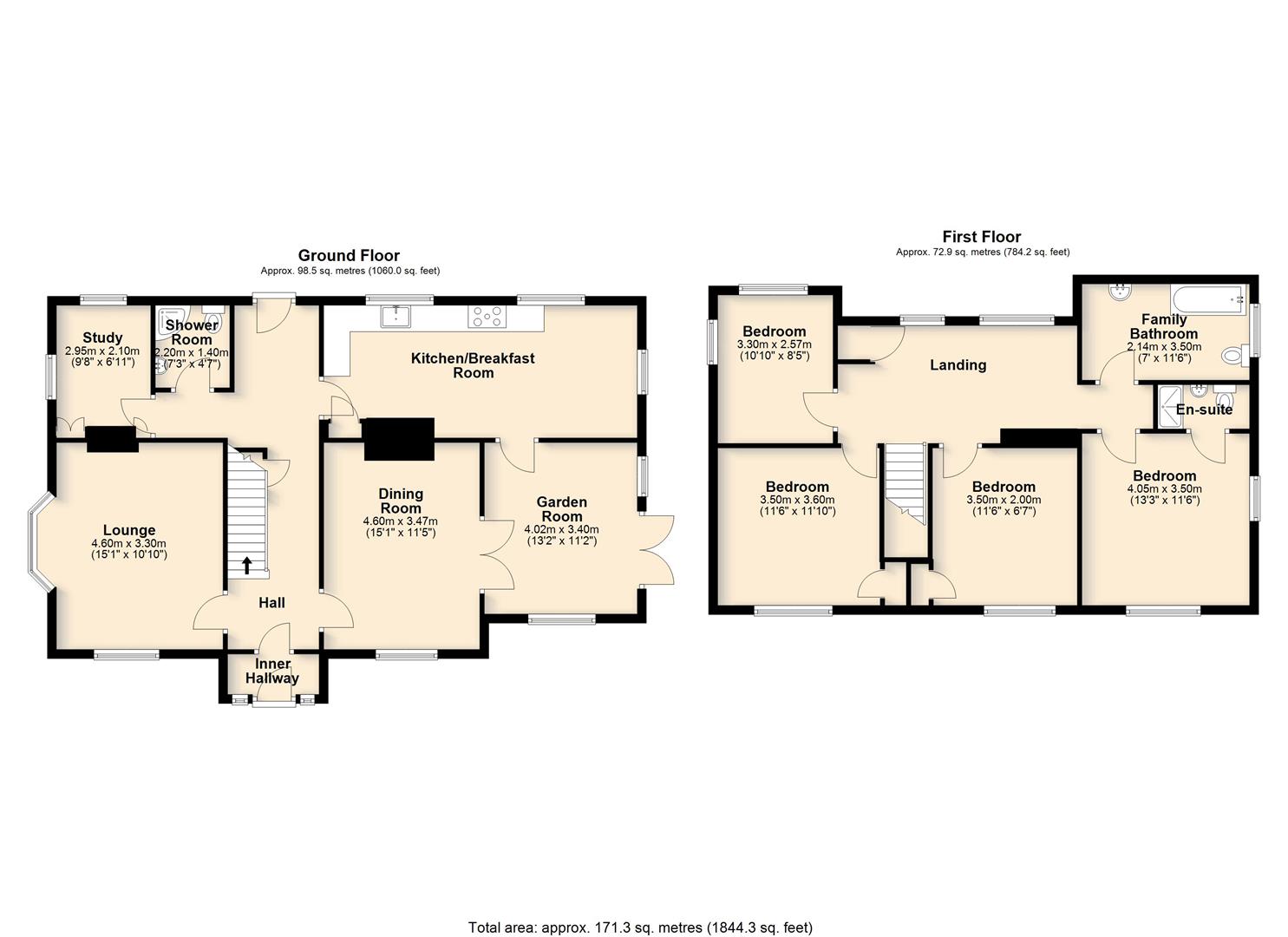
This spacious four-bedroom Victorian home offers a wealth of period character, complemented by well-proportioned and versatile living spaces. You are welcomed into the property through an attractive stained glass door typical of the period, which sets the tone for the features found throughout. The generous lounge boasts a striking Victorian fireplace and an attractive bay window, while the equally sized dining room enjoys its own feature fireplace and double doors leading to the later added garden room. Bright and airy, the garden room provides direct access to the rear garden and into the kitchen. The kitchen is a particular highlight, offering a large, well-appointed space fitted with a Rangemaster cooker, butler sink, and a range of wall-mounted and base units. A useful downstairs shower room adds further practicality to the layout, along with a separate study which could also be utilised as a fifth bedroom if required. Upstairs, a generous landing leads to four comfortable double bedrooms and a family bathroom. The main bedroom benefits from a modern en suite. Thanks to the abundance of windows, the property enjoys excellent natural light throughout.


Outside
The property sits centrally within its plot, set back from the road and approached via a private driveway through a five-bar gate. There are a variety of interesting garden areas to explore, along with a separate vehicular access leading to the garage. Off the garden room, a patio offers a pleasant space for summer evening seating, enjoying views over the garden.

Services: Mains water and electricity, mains drainage. Heating via an oil boiler.

How to get there : What3words///plotted.teardrop.daunted

Viewing: Strictly by appointment with TW Gaze.

Freehold

Anti-Money Laundering, Terrorist Financing and Transfer of funds Regulations 2017.
In line with the regulations, TW Gaze are legally required to carry out AML due diligence checks on all proposed legal purchasers involved in the transaction. A charge of £25.00 + VAT (£30.00 Inc VAT) processing fee is applicable for each purchaser once an acceptable offer is agreed.

Ref: 19939/KH
x

Book a Viewing

Your details

Your address

Please note by submitting your details you are agreeing for TW Gaze to store your data in order to process your enquiry and that you have read our Privacy Policy.

Call 01379 641 341 for more details on this property

Book a Viewing