Back to property search

3 bedroom property – Harts Lane, Bawburgh

Guide Price £500,000

Property Details

GUIDE PRICE£500,000 - £525,000.

OFFERED WITH NO CHAIN This charming three-bedroom detached bungalow in the sought-after village of Bawburgh with a large plot and Interesting outbuildings.

Full Description

GUIDE PRICE £500,000- £525,000

Location

The bungalow can be found in the popular village location of Bawburgh, close to the local golf course and within walking distance of the Bawburgh Kings Head and the Marlingford Bell . The property is set in a quintessential location close to the river green with the River Yare running through. The property is on a good access route to Norwich City centre and A47 giving access to Norfolk and Norwich, Science park and A11.



The Property

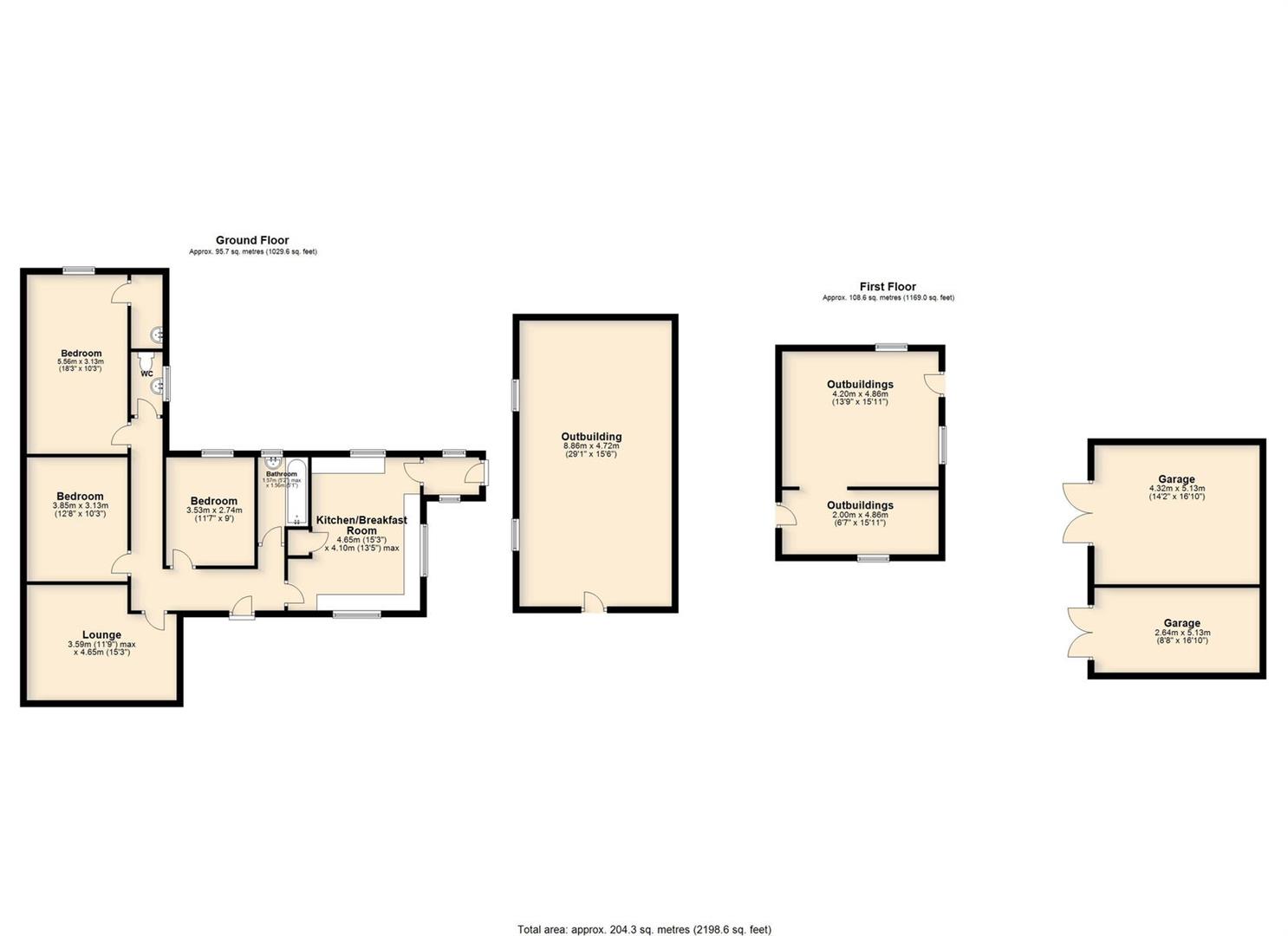
This charming three-bedroom detached bungalow in the sought-after village of Bawburgh, boasts a spacious plot, offering plenty of outdoor space and potential for landscaping or extensions. The property features a cosy living area, kitchen/breakfast area, bathroom, separate toilet and comfortable bedrooms, making it perfect for families or retirees. With its peaceful village setting, you'll enjoy a sense of community while being just a short drive from nearby amenities and city conveniences. Ideal for those seeking a tranquil lifestyle.



Outside



The large driveway and double garage offer plenty of space for parking. The two outbuildings could be great for storage, workshops or even conversion subject to planning. The bungalow, having a non-overlooked plot, means you can enjoy your outdoor space with more privacy.



Services



Mains electricity, water and drainage are connected to the property. An oil central heating boiler provides the domestic hot water and heating.



How to get there – What3words:

Faced.ranks.improvise



Viewing

Strictly by appointment with TW Gaze.



Tenure:

Freehold



Council Tax Band: C



Ref: 2/19695/LK
x

Book a Viewing

Your details

Your address

Please note by submitting your details you are agreeing for TW Gaze to store your data in order to process your enquiry and that you have read our Privacy Policy.

Call 01953 423 188 for more details on this property

Book a Viewing