Back to property search

4 bedroom property – North Lopham Road, Kenninghall

Guide Price £350,000

Property Details

Detached country farmhouse with mature grounds of around 0.3 acre. Exciting project for the next owner/s, as requires modernization. Non-estate with field views beyond rear boundary. 4 bedrooms, 3 reception rooms. Inglenook fireplace with wood burning stove. Located just a mile from Kenninghall village centre. No onward chain.

Full Description

Location

The pretty Breckland village of Kenninghall is picturesque and has a variety of period and character buildings dotted along West and East Church Street, along with more modern properties closer to the primary school. There is a station on the Norwich to Ely/Cambridge rail line at neighbouring Eccles Road and just a few miles further west is access onto the A11 dual carriageway, providing access into Norwich and out of the county. The historic and cultural 'fine' city of Norwich is roughly 20 miles from Kenninghall, and offers a wide range of shopping, entertainment, educational facilities. To the north west of the city is an International airport; the superb North Norfolk coast is also within a 30 mile drive from the city.

The property

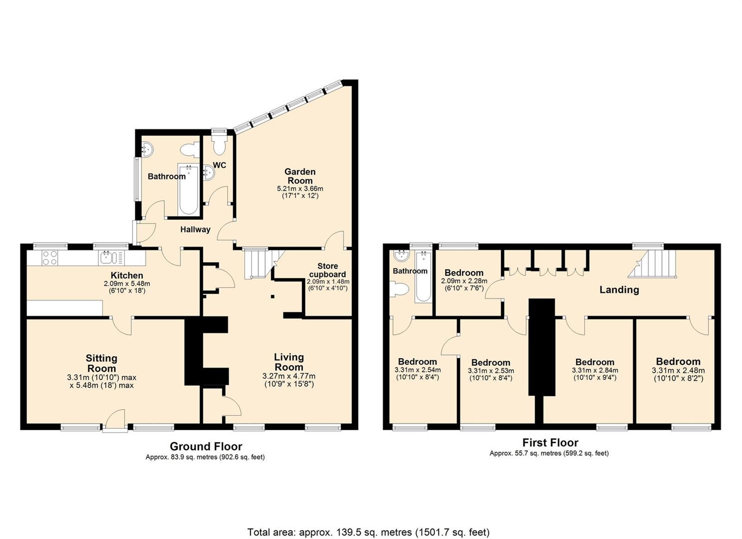
The house is an ideal 'forever home' project for the next owners, with plenty of scope to modernise and even potentially extend to the side or rear (subject to investigations and planning permission), transforming into a superb country home. The property is spacious on the ground floor, with a prominent Inglenook fireplace and wood burner in the front sitting room. The first floor accommodation is bright, with lots of natural light flooding in. Several of the bedrooms also have Victorian feature fireplaces and most have an outlook across the fields. As can be seen from the floorplan, there are 4 bedrooms in total, albeit one would currently ideally make for a dressing room, as it leads off another. bedroom.

Outside

The drive is approached off a side track from the main road and opens into a driveway that can cater for several cars, along with an old garage covered in foliage (which is in a poor state of repair). The rear garden is mature and laid mainly to lawn with various shrubs to the borders. Beyond the rear boundary is open farmland.

Agents note: The property is currently un-registered.

Services

Mains water, and electricity are connected. private drainage system.

Viewing

By appointment with TW Gaze

How to get there:

What3words: lifetimes.overnight.reworked

Freehold

Council Tax: E

Ref: 2/19358/RM
x

Book a Viewing

Your details

Your address

Please note by submitting your details you are agreeing for TW Gaze to store your data in order to process your enquiry and that you have read our Privacy Policy.

Call 01379 641 341 for more details on this property

Book a Viewing