Back to property search

4 bedroom property – Mission Way, Bressingham

Asking Price £495,000

Property Details

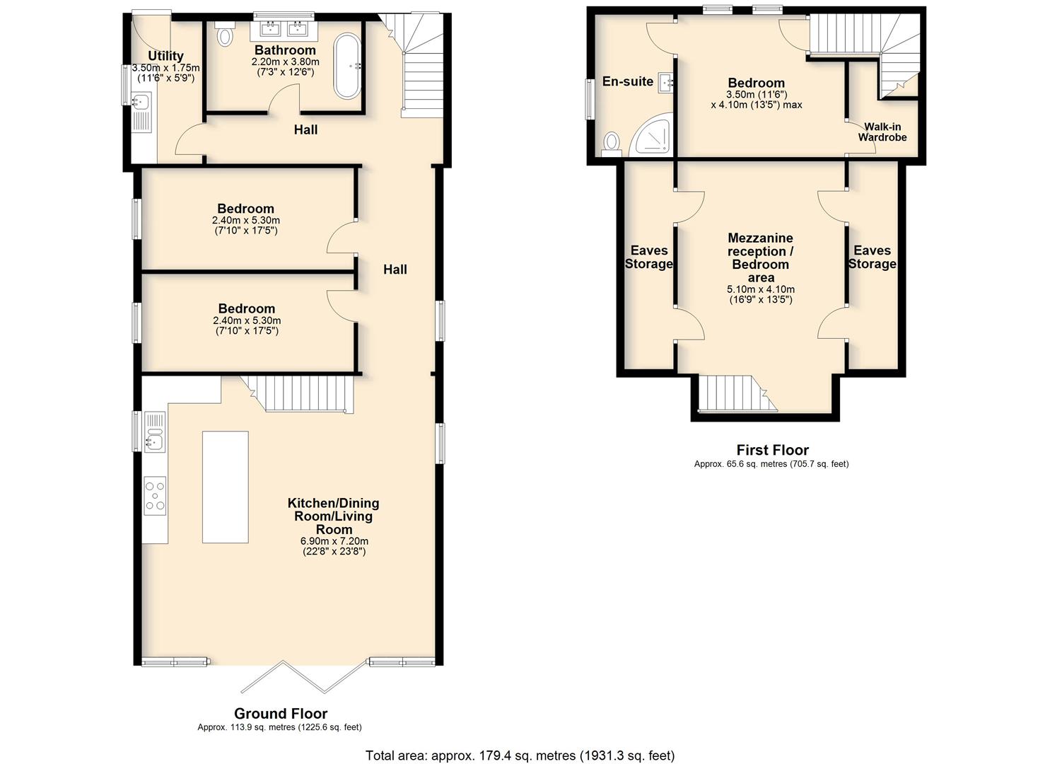
Unique property offering spacious, open plan kitchen and living accommodation creating a superb social hub for entertaining. Mezzanine reception/bedroom area. Established gardens. Countryside setting with views. No onward chain. Location
The property and small neighbouring cluster development is sited on land which originally formed part of a RAF Fersfield during the Second World War - where Joseph Kennedy was known to have visited. The immediate location is rural, with plenty of open countryside and walks on the doorstep, yet within 4 miles from the pretty, well served market town of Diss. The town offers a wide range of independent shops, cafes and restaurants, along with good shopping, leisure, schooling and transport facilities, including bus and rail connects. The station is on the mainline to Norwich, Ipswich and London Liverpool Street.

Property
As the name states, at one time the property was a Cinema which was used by the servicemen and women stationed at the airbase, and the visible film projector holes in the first floor bedroom provide a nod to its previous use. The Old Cinema has since been extensively renovated by the current seller, and offers a unique opportunity to purchase a bright, spacious home with heritage. The accommodation is spread across two floors, with the Mezzanine area at the front allowing for a multitude of uses, such as a cosy winter snug, or further bedroom space if necessary. A large open plan kitchen/living room is below and this is a wonderful, bright space which has a 'wow' factor, not only due to it being a social hub which is ideal for parties and family gatherings, but also its glazed gable end that's flooded with light for much of the day.

Outside
The property is approached via a private driveway, with entrance gate opening to the property. A driveway allows ample parking. The grounds are mature and laid to lawn with trees and hedging to borders. The property is set in an idyllic countryside setting, so as you may expect has some excellent countryside views beyond the boundaries.

Agent note
The next owners will enter into an agreement to help towards any future share driveway maintenance/costs.

Services
Mains electricity and water. Oil fired central heating. Private drainage system

How to get there
What3words ///spouse.skillet.fetch

Viewing
By appointment via TW Gaze

Council Tax band: C

Freehold

Ref: 2/19900
x

Book a Viewing

Your details

Your address

Please note by submitting your details you are agreeing for TW Gaze to store your data in order to process your enquiry and that you have read our Privacy Policy.

Call 01379 641 341 for more details on this property

Book a Viewing