Back to property search

3 bedroom property – Short Green, Winfarthing

£450,000

Property Details

Guide Price £450,000 - £465,000. A beautifully presented Grade II listed cottage tucked away in the village of Winfarthing, offering two bedrooms in the main house, a spacious garden room, and a self-contained annexe with potential for guest use or home business. Set in 0.22 acres of landscaped gardens with ample parking and a detached double garage. Location
This cottage is within the Parish of Winfarthing. Winfarthing which is a small village with church, public house and primary school. Nearby is the larger village of Banham which has a wider range of amenities and a zoo, a popular tourist attraction. The historic market town of Diss is around 5 miles away and has a weekly Friday auction and market. Additionally at Diss there is a mainline rail station on the Norwich to London Liverpool Street line. Attleborough is around 4 miles away with a train station on the Norwich to Cambridge line and the fine cathedral city of Norwich is around 20 miles to the north. This area is accessible to a wide range of tourist attractions ideal for the holiday home business and both the north Norfolk coast and eastern coastline around Southwold are within an hour's drive, and the Broads within 30 minutes.


Property
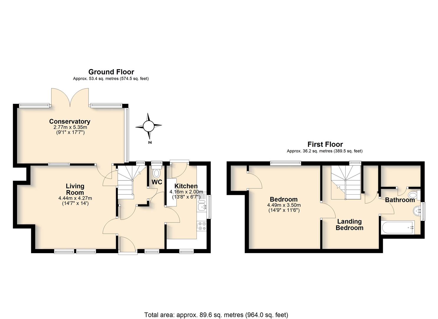
This charming Grade II listed cottage in the popular village of Winfarthing combines character features with flexible accommodation. The main cottage includes two bedrooms and a wealth of period charm, most notably in the spacious living room with its impressive inglenook fireplace. The living space flows into a bright and airy garden room with full views down the garden, creating an inviting space to relax or entertain. The kitchen sits to the side of the property, offering a practical layout that connects well with the living areas. There is also a convenient downstairs WC, while upstairs you’ll find two well-proportioned bedrooms and a family bathroom. To the rear of the plot is a substantial double garage with a self-contained annexe. This annexe has its own entrance and comprises a ground floor kitchen and large shower room, while upstairs is a generous studio-style bedroom/living space measuring approximately 5.96m x 3.37m. This setup offers superb versatility—ideal for guest accommodation, a home office or running a business without impacting the main residence.

Outside
Approached via a long gravel driveway, the property sits well back from the road and offers parking for several vehicles. The attractive garden extends to around 0.22 acres and is predominantly laid to lawn, bordered by mature hedging and a variety of thoughtfully planted flower beds that create different areas of interest throughout. A generous landscaped patio is accessed directly from the garden room and provides the perfect spot for outdoor dining or relaxation.
A winding path leads through the garden to a useful shed and a greenhouse, both of which are tucked discreetly to the rear and offer great storage and growing space for keen gardeners. With a wonderful sense of privacy, the garden is both practical and picturesque—complementing the peaceful, tucked-away setting of this unique home.


Services
Mains Water and electric are connected to the property. Private Drainage

How to get there
What3words ///spider.slate.corporate

Freehold

Anti-Money Laundering, Terrorist Financing and Transfer of funds Regulations 2017.
In line with the regulations, TW Gaze are legally required to carry out AML due diligence checks on all proposed legal purchasers involved in the transaction. A charge of £25.00 + VAT (£30.00 Inc VAT) processing fee is applicable for each purchaser once an acceptable offer is agreed.

Ref: 2/19939
x

Book a Viewing

Your details

Your address

Please note by submitting your details you are agreeing for TW Gaze to store your data in order to process your enquiry and that you have read our Privacy Policy.

Call 01379 641 341 for more details on this property

Book a Viewing