Back to property search

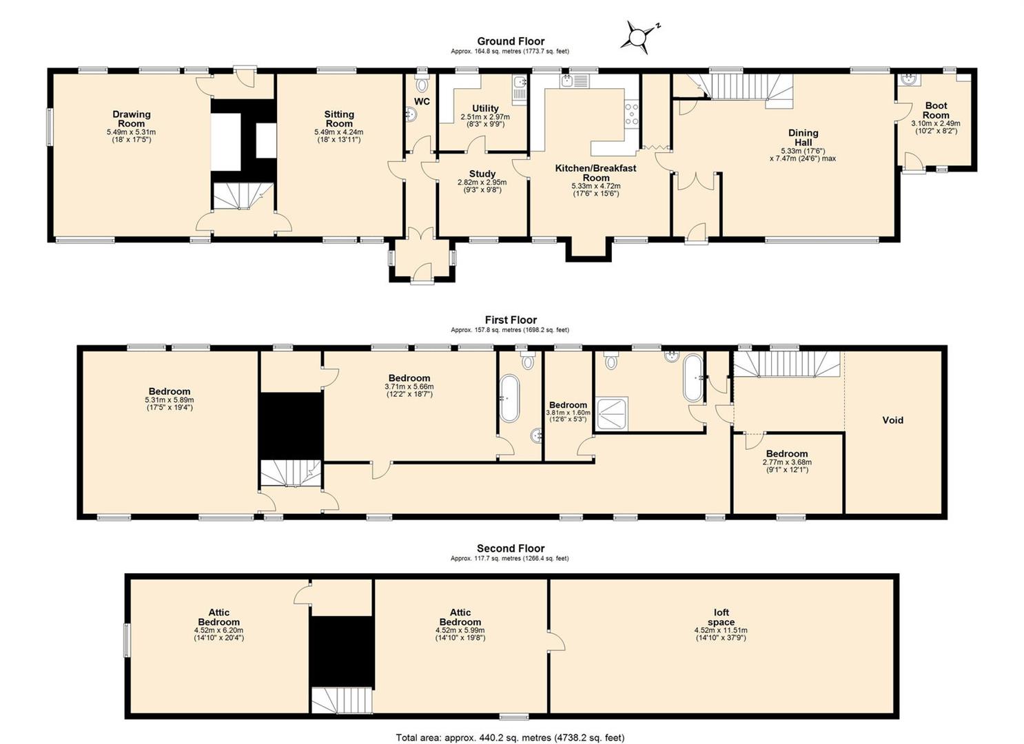
6 bedroom property – The Common, Metfield

Guide Price £850,000

Property Details

One of the finest timber framed houses set in acre and tucked away. 6 bedrooms and 3 reception rooms. An absolute gem!

Full Description

Location
Oak Farm is around half a mile from the village in a wonderful tucked away position and has the feeling of seclusion but with the benefit of two neighbours nearby both of which are single storey barn conversions and neither overlook this house. The village has a basic range of facilities including a well run community store and for a wider range of items there are the market towns of Harleston (5 miles) Bungay and Beccles (8 and 12 miles) and Halesworth 7 miles. A little further afield is Diss (12 miles) with its mainline rail service to London Liverpool Street in 90 minutes. For those seeking the coast, Southwold and Aldeburgh are within 30 minutes or so.

The House
There really aren’t that many houses like Oak Farm with its timber frame exposed both inside and out. It was once described as ‘a house that time forgot’ and whilst this is still true in many respects, it has undergone a thorough scheme of updating that has been done so gently that it is almost unnoticeable and has preserved this Grade II Listed house which is mentioned in Pevsner’s book of Suffolk houses. Some of the particular features are that it is nearly 100 long and was built in four distinct stages between 16th and 17th centuries and is clearly an early ‘Hall House’ with a jettied storey set on a Tudor rose bracket.

The Garden
The access runs beside the moat and gives just a hint of what may lay beyond. Lawns and well tended flower beds lead past the terraced area and up to the pond and wooded copse behind, which gives a wonderful dappled shade.
Useful outbuildings and a greenhouse provide ample storage space and could be repurposed as a garden studio with a little imagination. Overall this has the perfect mix of formality and wildlife areas.

Services: Mains water and electricity. Private drainage. Oil fired boiler providing heating to radiators

How to get there: What3Words: ///gates.missions.waged

Viewing: Strictly by appointment with TW Gaze.

Freehold

Anti-Money Laundering, Terrorist Financing and Transfer of funds Regulations 2017.
In line with the regulations, TW Gaze are legally required to carry out AML due diligence checks on all proposed legal purchasers involved in the transaction. A charge of £25.00 + VAT (£30.00 Inc VAT) processing fee is applicable for each purchaser once an acceptable offer is agreed.

Ref: 2/19532/MS
x

Book a Viewing

Your details

Your address

Please note by submitting your details you are agreeing for TW Gaze to store your data in order to process your enquiry and that you have read our Privacy Policy.

Call 01379 641 341 for more details on this property

Book a Viewing