Back to property search

3 bedroom detached house – Long Row, Tibenham, Norwich, NR16 1PA

£550,000

Property Details

Location
Tibenham has a church and public house, the nearby villages of New Buckenham and Bunwell have local shops and a little further afield are the market towns of Wymondham (10 miles) and Diss (7 miles) both of which are well served, and with Diss providing a commuter rail service to London Liverpool Street in around 90 minutes. For greater cultural variety, the fine city of Norwich is just 16 miles to the north and has an international airport.

Property 
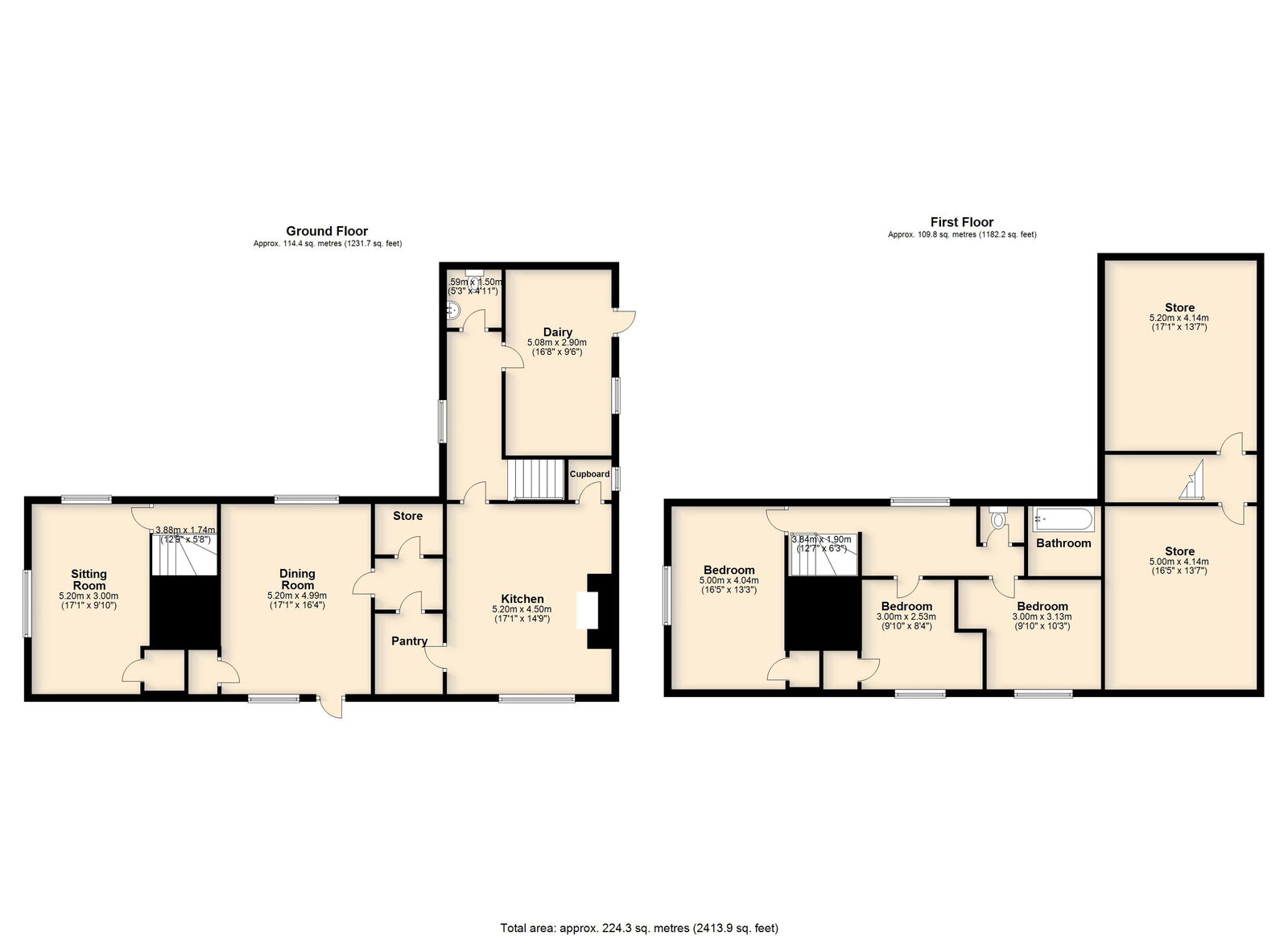
This Grade II listed property sits centrally in the plot with a range of barns and workshops available. The house comprises of three bedrooms with two further rooms upstairs currently accessed off a stairs near the back door. The property is currently three bedrooms but has the potential for The property was updated in the 1960's and has had very little modernisation since offering the new purchaser the opportunity to add their own stamp to it. The property offers two large reception rooms alongside a sizeable family kitchen. The property has retained a the original dairy which is now being used as a boot room/utility to the rear entrance. 

Outside
The main barn is 1648sqft and is a mixture of brick and timber frame under a pantile roof.  Other buildings on the site include various workshops including two large metal stores which are fairly modern and good order. There is an orchard to the side and the garage 10.7m x 5.9m. 

Services

Mains water, electricity and drainage are connected to the property. Oil fired boiler providing heating to radiators and domestic hot water. 

Directions

What3words/// circle.musical.flashback

Viewing Strictly by appointment with TW Gaze.

Freehold

 

 

 

 

x

Book a Viewing

Your details

Your address

Please note by submitting your details you are agreeing for TW Gaze to store your data in order to process your enquiry and that you have read our Privacy Policy.

Call 01379 641 341 for more details on this property

Book a Viewing