Back to property search

3 bedroom end of terrace – Diss, IP22 4JN

Guide price £350,000

Property Details

Location
Diss is a market town on the Norfolk/Suffolk border with a surprising number of independent specialist shops and businesses providing a wide variety of goods and services including three national brand supermarkets. The town has well regarded schools, good sporting and leisure facilities and a wide range of social activities. Diss rail station lies on the Norwich to London Liverpool Street mainline, a journey to London scheduled to take around 90 minutes. The regional, cultural and business centre of Norwich lies approximately 25 miles to the north.

Property 
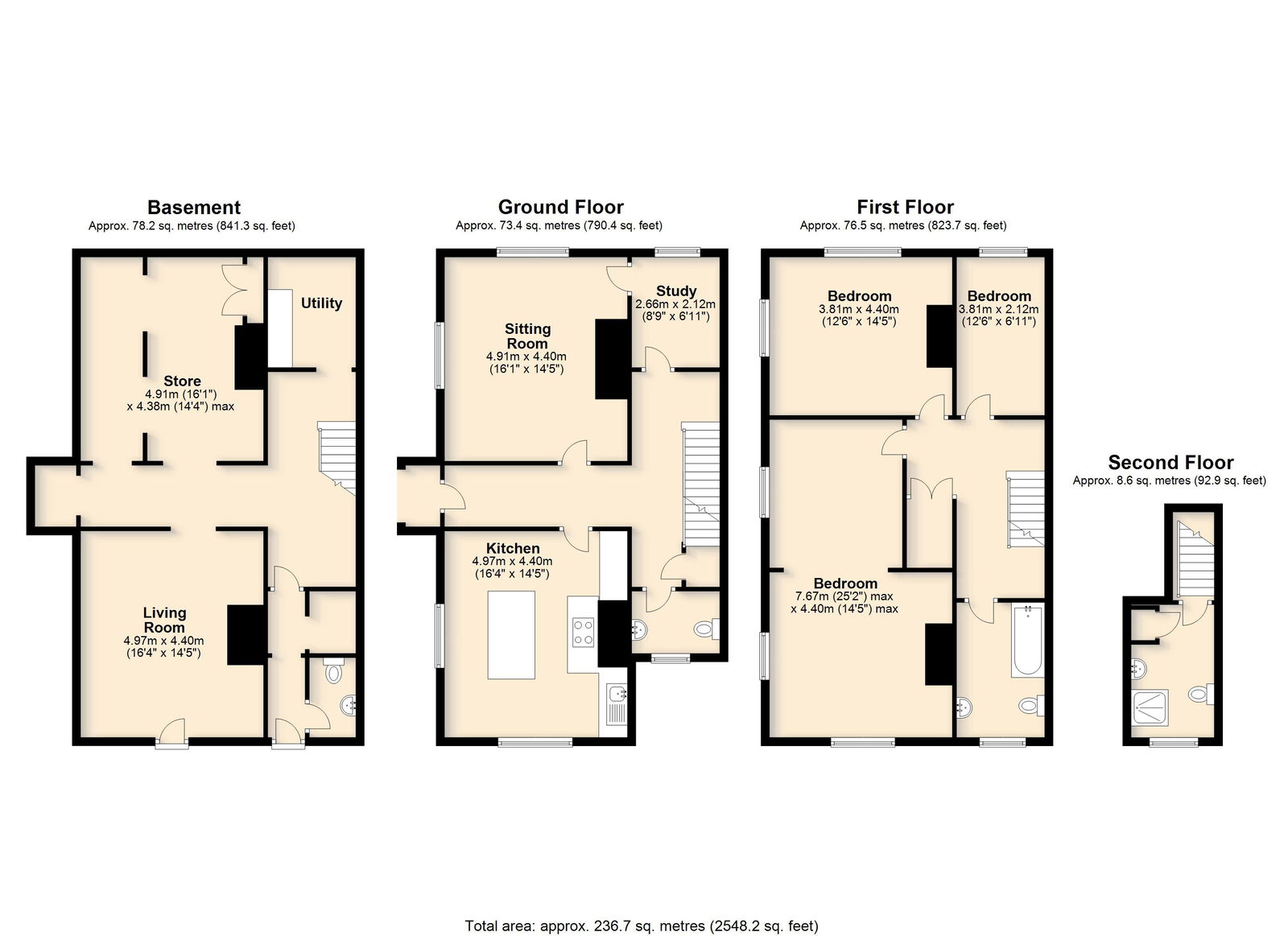
This Georgian townhouse in the historic town of Diss combines classic architectural elegance with modern comforts. The home showcases period features such as original cornices, and wrought-iron railings, all of which enhance its character. Spanning four floors and featuring an extensive basement, it’s perfect for families or professionals seeking a stylish residence in the heart of the town. The property boasts three spacious bedrooms, each adorned with original features such as high ceilings and large sash windows. There is the convenience of two bathrooms and and two additional WC facilities. At the heart of the home is a large kitchen with good counter space, and an island that serves as a breakfast bar. The elegant formal sitting room is highlighted by period fireplaces and large windows with original shutters that fill the space with natural light.  The extensive basement offers a versatile space that can be utilized as a gym, home office, or additional ancillary living space. While the property has been maintained and remodelled over the years it now offers the chance for someone to remodel and update it to their taste and requirements 

Outside
The private rear garden mainly laid to shingle and entered via double gates

Services
Mains water, drainage, gas and electricity are connected to the property. Gas fired central heating.

How to get there - what3words
///directive.helpful.oddly

Viewing Strictly by appointment with TW Gaze

Freehold.

Council Tax Band: D

 

x

Book a Viewing

Your details

Your address

Please note by submitting your details you are agreeing for TW Gaze to store your data in order to process your enquiry and that you have read our Privacy Policy.

Call 01379 641 341 for more details on this property

Book a Viewing