Back to property search

6 bedroom detached house – Metfield

Guide price £850,000

Property Details

Location Oak Farm is around half a mile from the village in a wonderful tucked away position and has the feeling of seclusion but with the benefit of two neighbours nearby both of which are single storey barn conversions and neither overlook this house. The village has a basic range of facilities including a well run community store and for a wider range of items there are the market towns of Harleston (5 miles) Bungay and Beccles (8 and 12 miles) and Halesworth 7 miles. A little further afield is Diss (12 miles) with its mainline rail service to London Liverpool Street in 90 minutes. For those seeking the coast, Southwold and Aldeburgh are within 30 minutes or so.   

 

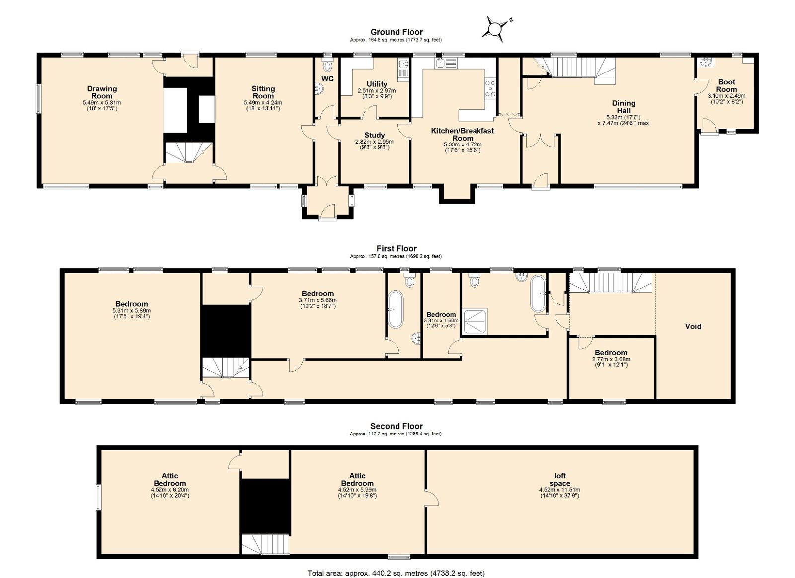
The House There really aren’t that many houses like Oak Farm with its timber frame exposed both inside and out. It was once described as ‘a house that time forgot’ and whilst this is still true in many respects, it has undergone a thorough scheme of updating that has been done so gently that it is almost unnoticeable and has preserved this Grade II Listed house which is mentioned in Pevsner’s book of Suffolk houses. Some of the particular features are that it is nearly 100 long and was built in four distinct stages between 16th and 17th centuries and is clearly an early ‘Hall House’ with a jettied storey set on a Tudor rose bracket. 

 

The Garden The access runs beside the moat and gives just a hint of what may lay beyond. Lawns and well tended flower beds lead past the terraced area and up to the pond and wooded copse behind, which gives a wonderful dappled shade. 

Useful outbuildings and a greenhouse provide ample storage space and could be repurposed as a garden studio with a little imagination.

Overall this has the perfect mix of formality and wildlife areas.

 

Services Mains water and electricity. Private drainage. Oil fired boiler providing heating to radiators

 

Directions From Diss travelling on the A143. At the Harleston roundabout continue straight over and then take first right signed to Mendham. At the ‘T’ junction turn right, over the bridge and then turn left following the road into and through Metfield. Pass the area of open common and just before a pair of single storey redbrick barns on the right, the drive to Oak Farm will be seen on the right. 

What3Words: gates.missions.waged

 

Viewing Strictly by appointment with TW Gaze. 

 

Freehold 

Ref: 2/19532/MS

x

Book a Viewing

Your details

Your address

Please note by submitting your details you are agreeing for TW Gaze to store your data in order to process your enquiry and that you have read our Privacy Policy.

Call 01379 641 341 for more details on this property

Book a Viewing