Back to property search

Residential development site – Residential Development Site, Spooner Row

Guide Price £600,000

Property Details

Location The site is situated in the very popular village of Spooner Row set away from the road. The village has great access to the A11 and is only 3 miles from the vibrant market town of Wymondham and

14 miles from the centre of Norwich. In Spooner Row there is the well regarded Boars public house and primary school. Wymondham has a considerable number of varied shops, cafés and local businesses. Other amenities include banks and a doctors' surgery and larger stores and supermarkets include Co-op, Waitrose and Morrisons. There is a monthly farmers' market and easy access to the train station which lies on the Norwich to Cambridge main line and also the A11 trunk road. There are a number of good schools for all ages in the area, including Wymondham College.

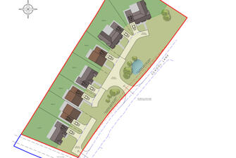
The Site The site is 0.500ha (1.25 acres) (stms) and is set well back from the road through the village accessed off a small country lane. It has the benefit of planning permission for 7.

The site forms part of a field and is level in nature.

The scheme has been thoughtfully designed to account for the surrounding area and to maximise plot space allowing for spacious accommodation and generous plot sizes.

Planning The site originally had planning permission under application number 2016/0627 as amended by 2018/1772 with a variation under 2022/0095 for the construction of 7 two storey dwellings.

Additional information available from the Agents

Prospective purchasers must make their own enquiries of the LPA. South Norfolk District Council, South Norfolk House, Cygnet Court, Long Stratton, Norfolk NR15 2XE.

Legal Costs Each party will be responsible for their own legal costs incurred in documenting the sale.

CIL and S106 payments The site will be liable for CIL payments and an additional single contribution of £10,000 towards infrastructure costs as set out in the S106.

Affordable Housing There is no requirement for Affordable Housing in this scheme

Services We have not carried out tests on any of the services and interested parties are invited to make their own enquiries.

Extra-Over costs Buyers should be aware of the following indicative figures:
Electricity connection £150,000
Attenuation £75,000



The sale is subject to all rights of support, public and private rights of way, water, light, drainage and other easements, quasi-easements and wayleaves, all or any other like rights, whether mentioned in these particulars or not.

Viewing Strictly by appointment with TW Gaze.

Freehold under Title No: NK95761

Ref: 2/17826/MS
x

Book a Viewing

Your details

Your address

Please note by submitting your details you are agreeing for TW Gaze to store your data in order to process your enquiry and that you have read our Privacy Policy.

Call 01379 641 341 for more details on this property

Book a Viewing