Back to property search

5 bedroom barns for conversion – Black Horse Barn, Thorndon

Guide Price £450,000

Property Details

Location Black Horse Barn is located in the village of Thorndon and its position maximises rural views. Thorndon is a popular village with its public house, shop, mobile post office, school and church. The village is set around 4.5 miles from Debenham, 13 miles from Stowmarket and 11 miles from Diss. Nearby is the renowned Thornham Estate, consisting of some 2,000 acres and providing 12 miles of beautiful walks through well managed and varied habitats of woods, parkland and farmland. Amenities are not far away with the small town of Eye just some 4 miles distant providing an interesting range of local shops, medical and social facilities and schooling to sixth form level at the academy rated Hartismere High School.

Thorndon is well located for access to the A140 providing a direct route to Norwich and Ipswich and just across the county border into Norfolk is the thriving market town of Diss providing local and national shopping, sporting and leisure facilities including an 18 hole golf course and driving range. There is a mainline rail station at Diss and Stowmarket providing regular intercity services to Norwich, Ipswich and London Liverpool Street. In addition, the renowned Suffolk Heritage Coast around Southwold is just one hour's drive away.

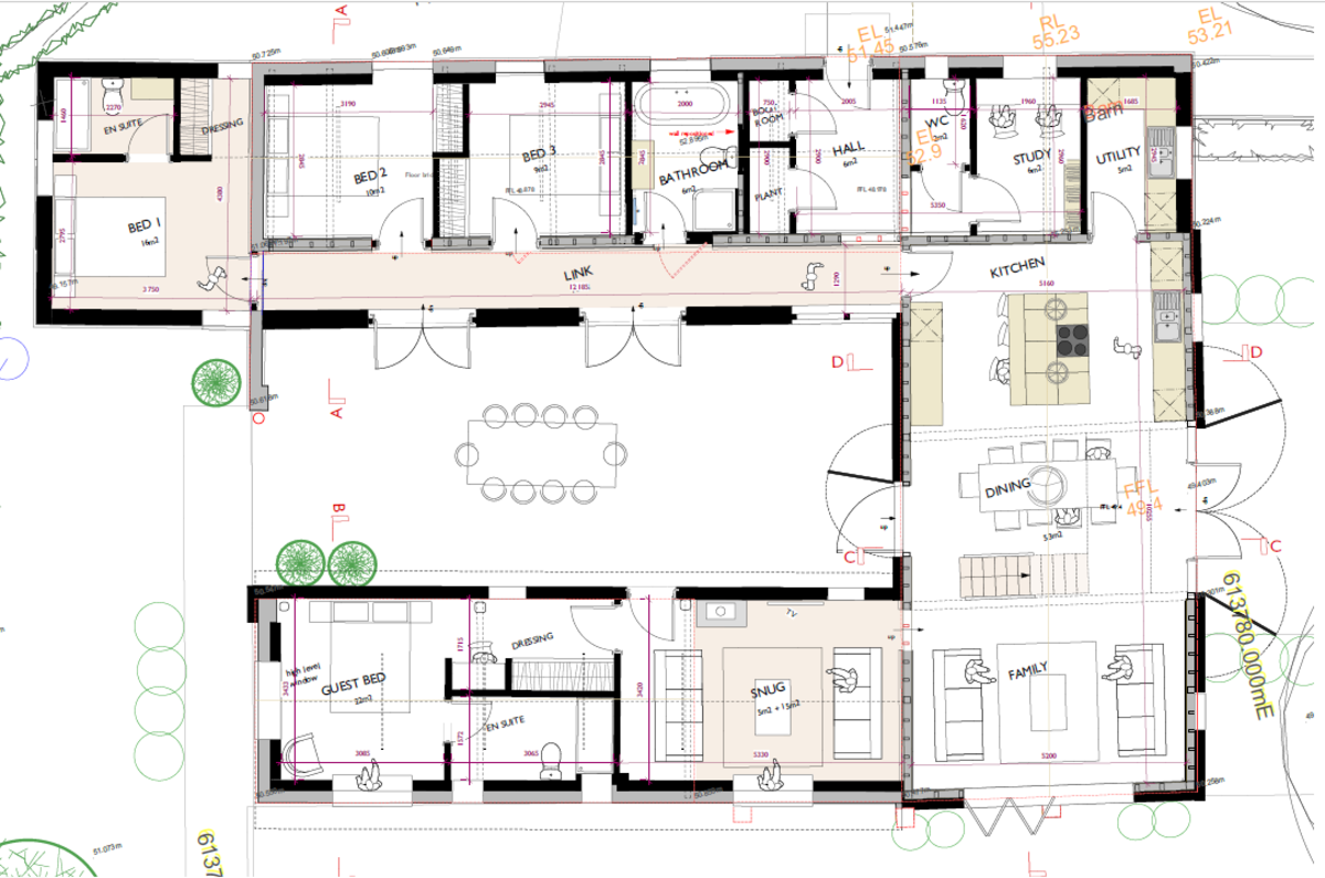
The Property Originally dating back to the 1800's, the barn is being bought to market individually to allow the purchasers an opportunity to build their ideal home. The design for Black Horse Barn really brings that 'wow' factor to your traditional family home. The current planning application allows the conversion of the timber framed barn into a substantial 5 bed, detached dwelling across two floors. The proposal is for over 2,500sqft of living space which includes a huge, open plan kitchen, living and dinning room with vaulted ceilings and bi fold doors vieing onto the countryside beyond. Where possible, the internal timber frame will be left exposed with the proposed renovation including external black weatherboard cladding and a number of full height windows throughout the property which will create a truly special residential dwelling.

Outside The property will sit in grounds measuring around a third of an acre. The uninterrupted countryside views to the southern boundary does create the impression of a much larger, open site. The Barn be served from a shared access way leading to a private drive, sweeping round to a double garage.

The gardens are intended to be landscaped with two outdoor dining areas, one of which sits in the secluded courtyard area accessed from the kitchen dining room.

Planning Full planning consent has been applied for to Mid Suffolk Council on 1st February 2023. A resolution to this application is expected in the coming weeks and all documents relating to the application can be viewed under planning reference DC/23/00526.

It is worth noting that an application has also been submitted to the land to the front of the property for three bungalows which can be viewed under reference number DC/23/00831.

Community Infrastructure Levy (CIL) Mid Suffolk council have adopted CIL and any purchaser will have to make their own enquiries into whether they qualify for an exemption under this charge.

Services Mains water and electricity are available nearby. Private drainage will need to be included within the renovation. Purchasers should make their own enquiries relating to the availability of services.

Directions Leaving Diss, proceed onto the A140 heading south towards Ipswich. At the crossroads with the White Horse Inn, turn left and follow this road into the village of Thorndon. Proceed into the village until you reach the Black Horse Pub where the barn will be found on the right hand side.

Viewing Strictly by appointment with TW Gaze.

Freehold

Ref: 2/19144/CJC
x

Book a Viewing

Your details

Your address

Please note by submitting your details you are agreeing for TW Gaze to store your data in order to process your enquiry and that you have read our Privacy Policy.

Call 01379 641 341 for more details on this property

Book a Viewing